华润·外滩瑞府-上海静安(外滩瑞府)首页网站-2025最新房价+户型图+小区环境+配套

咸宁楼市发布 2025-10-18 22:23:00
用手机看
扫描到手机,新闻随时看

扫一扫,用手机看文章
更加方便分享给朋友

主力户型约124-165㎡3-4房;当下2000万级已经完全买不进黄浦核心地段,而外滩瑞府不仅能以2000万级入手,更是今年2000-5000万级上海位置更好、更值得入手的豪宅!碧云北外滩距离项目900米左右…

均价14.83万/㎡!外滩旁核心资产「外滩瑞府」认购中!二批次加推146套建面约124-330㎡3-4房丨附一房一价表!

虹口北外滩旁

10号线四川北路站约400米

「外滩瑞府」二批次认购中!

加推146套约124-330㎡3-4房

均价14.83万/㎡!认购金200万!

认购时间:10月17日-10月21日

往下阅读项目一房一价表!

预约咨询热线:400-960-1656☎, 加微咨询:139 1616 5691(加微,不要来电,备注楼盘名字)

点击输入图片描述(最多30字)

点击输入图片描述(最多30字)

点击输入图片描述(最多30字)

去年11月27日,华润置地旗下的上海煦臻企业管理有限公司以总价51.36亿元竞得虹口区C080301单元hk191A-03地块,成交楼面价92934元/平方米,溢价率11.97%,地块中小套型占比40%,装修标准4000元/㎡。

点击输入图片描述(最多30字)

方案显示,地块总占地面积14280.63㎡,容积率3.87,总建筑面积86241㎡,地上建筑面积60201㎡,计容建筑面积55266㎡,地下建筑面积26040㎡,计划建设4幢24-31层高层住宅以及1幢总高3层的风貌建筑

具体来看,1#总高31层,一层架空;2#总高31层,一层架空;4#总高32层,一层架空;3-1#总高24层,一层架空;6为风貌建筑,总高3层,含商业和住宅。在景观设计方面,小区内规划了景观架构、风雨连廊以及下沉式庭院。

点击输入图片描述(最多30字)

点击输入图片描述(最多30字)

外滩瑞府的建筑设计,是一场“向历史致敬、向未来生长”的实验:采用“风貌→幕墙→冠冕”过渡式向上生长设计:基座延续石库门拱券符号,中段以玻璃幕墙与金属线条勾勒现代美学,顶部“冠冕”造型致敬外滩古典建筑天际线;

点击输入图片描述(最多30字)

以“街区可漫游”的城市更新理念激活历史里弄:保留风貌建筑的同时,规划植入文化艺术分馆、精品咖啡工坊、黑胶唱片店等“高级烟火气”业态,让老上海的“弄堂温度”与国际生活方式碰撞出新火花——这不是简单的“盖房子”,而是“造生活”。

点击输入图片描述(最多30字)

点击输入图片描述(最多30字)

外滩瑞府,地处上海内环最“根正苗红” 的位置 —— 外滩1 公里生活圈。如果说内环是上海豪宅的 “第一梯队”,那外滩板块就是 “内环中的内环”

点击输入图片描述(最多30字)

点击输入图片描述(最多30字)

外滩瑞府首开告罄,劲销24.8亿!二批次房源加推在即!

点击输入图片描述(最多30字)

虹口北外滩旁,10号线四川北路站约400米!「外滩瑞府」二批次加推建面124-165-330㎡3-4房;均价14.83万/㎡!认购金200万!认购时间:10月17日-10月21日!售楼处线上火热预约中!

主力户型约124-165㎡3-4房;当下2000万级已经完全买不进黄浦核心地段,而外滩瑞府不仅能以2000万级入手,更是今年2000-5000万级上海位置更好、更值得入手的豪宅!

点击输入图片描述(最多30字)

点击输入图片描述(最多30字)

一房一价表如下:

点击输入图片描述(最多30字)

点击输入图片描述(最多30字)

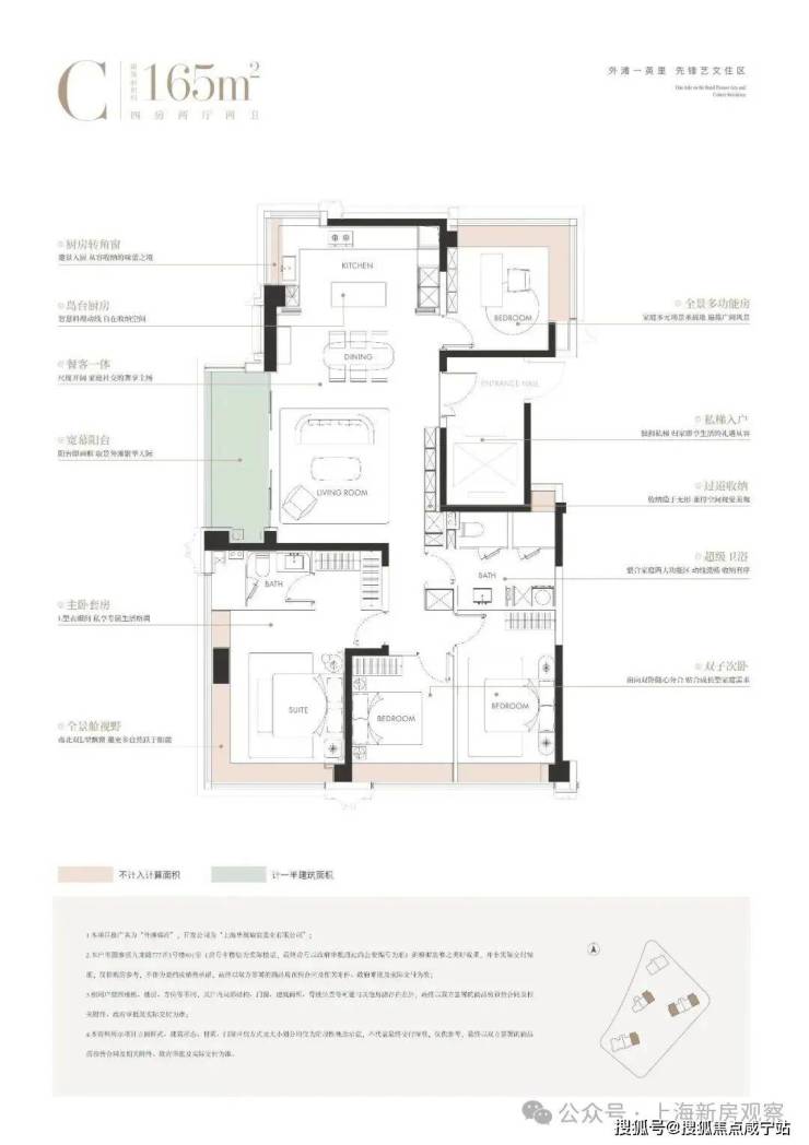
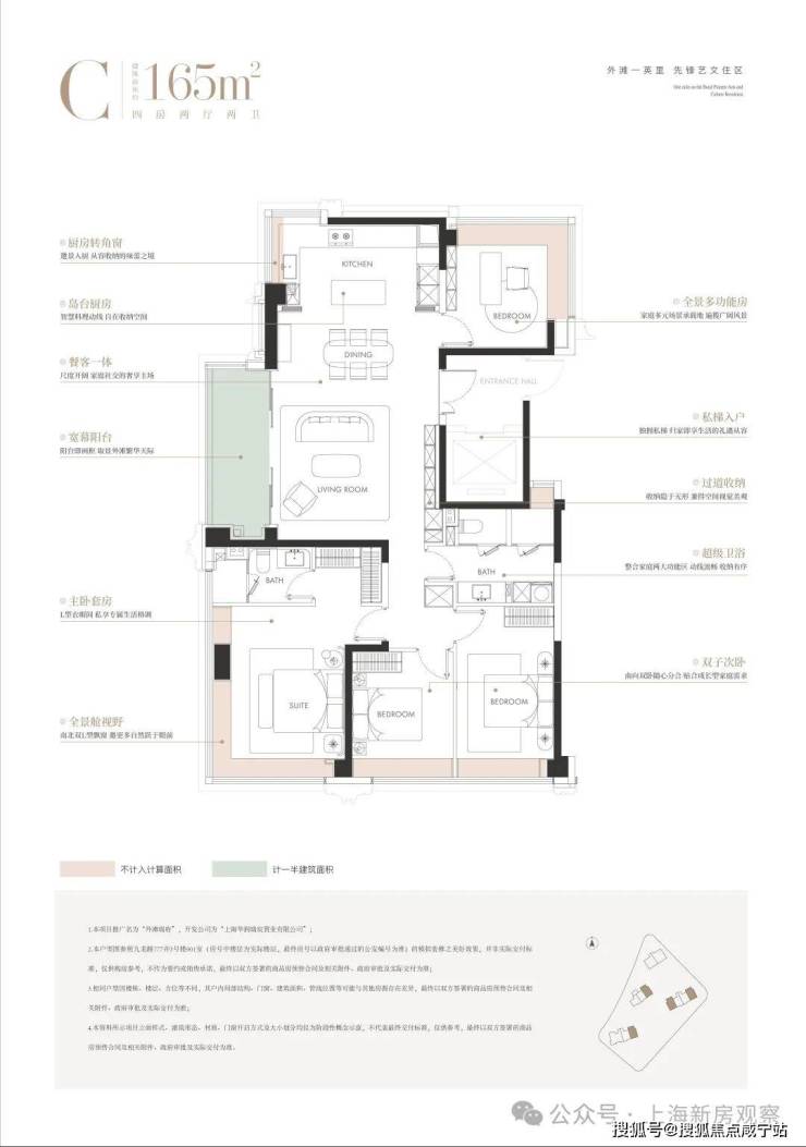
即将入市户型图如下:

点击输入图片描述(最多30字)

点击输入图片描述(最多30字)

点击输入图片描述(最多30字)

点击输入图片描述(最多30字)

建面约240㎡4房样板间展示如下:

点击输入图片描述(最多30字)

点击输入图片描述(最多30字)

点击输入图片描述(最多30字)

点击输入图片描述(最多30字)

点击输入图片描述(最多30字)

点击输入图片描述(最多30字)

点击输入图片描述(最多30字)

上期主力户型图及样板间展示

点击输入图片描述(最多30字)

点击输入图片描述(最多30字)

点击输入图片描述(最多30字)

点击输入图片描述(最多30字)

点击输入图片描述(最多30字)

点击输入图片描述(最多30字)

点击输入图片描述(最多30字)

点击输入图片描述(最多30字)

点击输入图片描述(最多30字)

点击输入图片描述(最多30字)

点击输入图片描述(最多30字)

点击输入图片描述(最多30字)

点击输入图片描述(最多30字)

点击输入图片描述(最多30字)

点击输入图片描述(最多30字)

点击输入图片描述(最多30字)

点击输入图片描述(最多30字)

点击输入图片描述(最多30字)

点击输入图片描述(最多30字)

点击输入图片描述(最多30字)

点击输入图片描述(最多30字)

点击输入图片描述(最多30字)

点击输入图片描述(最多30字)

最新效果示意图如下

点击输入图片描述(最多30字)

点击输入图片描述(最多30字)

点击输入图片描述(最多30字)

点击输入图片描述(最多30字)

点击输入图片描述(最多30字)

点击输入图片描述(最多30字)

点击输入图片描述(最多30字)

点击输入图片描述(最多30字)

点击输入图片描述(最多30字)

外滩“历史溢价”与陆家嘴“未来势能”在此叠加,黄金三角腹地成为中国高净值圈层的聚集地,是时代价值创造者的共同选择。

点击输入图片描述(最多30字)

点击输入图片描述(最多30字)

项目以“街区可漫游”的城市更新理念激活历史里弄:保留风貌建筑的同时,规划植入文化艺术分馆、精品咖啡工坊、黑胶唱片店等“高级烟火气”业态,让老上海的“弄堂温度”与国际生活方式碰撞出新火花;

点击输入图片描述(最多30字)

建筑立面采用“风貌→幕墙→冠冕”过渡式向上生长设计:基座延续石库门拱券符号,中段以玻璃幕墙与金属线条勾勒现代美学,顶部“冠冕”造型致敬外滩古典建筑天际线,堪称“向上生长的精神图腾”。

外滩瑞府全域风雨连廊,将风雨连廊扩容为完整的归家体系,实现全住宅楼栋无风雨归家,带来顶豪级的归家居住体验。

点击输入图片描述(最多30字)

项目示意图,过程稿仅供参考,以实际交付为准

点击输入图片描述(最多30字)

点击输入图片描述(最多30字)

点击输入图片描述(最多30字)

点击输入图片描述(最多30字)

点击输入图片描述(最多30字)

点击输入图片描述(最多30字)

点击输入图片描述(最多30字)

点击输入图片描述(最多30字)

区位方面,“上海2035”总体规划明确,外滩将作为“全球城市核心功能承载区”,与陆家嘴、北外滩组成“黄金三角”,目标直指“卓越全球城市”的封面。这一规划不仅定义了上海的空间格局,更将外滩推向全球资本、文化、资源的核心交汇点。

点击输入图片描述(最多30字)

外滩瑞府择址于此,对标纽约ONE57、伦敦海德公园一号——非全球资本聚集地不选,非历史与未来叠加区不立,其价值内核正是对“黄金三角”核心资产的精准锁定,为业主提供了“抗周期”的资产保障。

点击输入图片描述(最多30字)

交通上,距轨道交通10号线四川北路站0.4公里,商业上,利通广场、壹丰广场、中信广场1933购物中心 都在步行距离范围内;

教育上,有民办新华初级中学、虹口区中州路第一小学、上海市虹口区第一中心小学、上海市海南中学 ;医疗上,临近上海市第一人民医院。

点击输入图片描述(最多30字)

在市场方面,目前该地块周边的新建住宅项目包括北外滩虹口源717、越秀·外滩樾、上海弘安里、海泰北外滩、天潼198、光大&伊泰置业北外滩项目以及碧云北外滩尊邸等。

越秀外滩樾项目位于地块西侧约350米处,该项目为风貌别墅,已于去年年底正式推向市场,主力户型面积在235-338㎡之间,总价段为4000万元-8000万元。

位于地块北侧约600米的北外滩虹口源717项目目前在售。该项目上一次开盘时间是去年6月份,共推出228套建面约100-356房源,备案均价138000元/平方米,认购率86%,截至目前,网上房地产显示,项目已售住宅套数为155套,网签去化率68%。

上海弘安里项目位于地块西南侧1公里左右,该项目为风貌别墅,于去年3月份首开,目前项目在售少量建面约380㎡风貌别墅,总价约8000万起,均价约24.3万/㎡。

碧云北外滩距离项目900米左右,该项目上一次开盘时间是去年12月份,共推出137套建面约180-230㎡房源,备案均价130000元/平方米,开盘当天去化率约66%,截至目前,网上房地产显示,项目已售住宅套数为88套,网签去化率64%。

点击输入图片描述(最多30字)

虹口北外滩旁「外滩瑞府」二批次加推约124-330㎡3-4房;均价14.83万/㎡!

预约咨询热线:400-960-1656☎, 加微咨询:139 1616 5691(加微,不要来电,备注楼盘名字)

声明:本文由入驻焦点开放平台的作者撰写,除焦点官方账号外,观点仅代表作者本人,不代表焦点立场。