杨浦保利誉滨江(营销中心)首页网站-保利誉滨江销售中心(售楼处)-保利誉滨江售楼处电话-电话地址-价格-户型-小区环境-楼盘详情-交房时间-周边配套

咸宁楼市发布 2025-10-14 18:30:00
用手机看
扫描到手机,新闻随时看

扫一扫,用手机看文章
更加方便分享给朋友

杨浦滨江「保利誉滨江」首推建面约117-139㎡3-4房即将入市!保利誉滨江基底采用质感厚重的石材,上层第一界面则以全铝板+玻璃幕墙为主,更突破性地实现了“四面平权”设计——不同于多数楼盘只注重南面美观,侧面…

样板间已开放!会所+全铝板品质封顶!杨浦滨江「保利誉滨江」首推建面约117-139㎡3-4房即将入市!

杨浦新中心+双核辐射

「保利誉滨江」

首推建面约117-139㎡3-4房

官方户型曝光!

售楼处&样板间已开放!

约10000㎡内外都心园林

约3000㎡泛会所与架空层

即将入市!

预约咨询热线:400-960-1656☎, 加微咨询:139 1616 5691(加微,不要来电,备注楼盘名字)

点击输入图片描述(最多30字)

点击输入图片描述(最多30字)

点击输入图片描述(最多30字)

保利誉滨江基底采用质感厚重的石材,上层第一界面则以全铝板+玻璃幕墙为主,更突破性地实现了“四面平权”设计——不同于多数楼盘只注重南面美观,侧面与北面简化处理的做法,保利誉滨江无论从正面、侧面还是背面观察,立面都保持精致统一的视觉效果。

点击输入图片描述(最多30字)

点击输入图片描述(最多30字)

项目首推建面约117-139㎡3-4房。

建面约119㎡三房户型:

南向双阳台,私厅入户

点击输入图片描述(最多30字)

点击输入图片描述(最多30字)

建面约139㎡四房户型:

南向面宽10米,侧向总面宽14.1米。两个转角飘卧室。双阳台,其他房间全飘窗赠送。除了西边,另外三面几乎全是窗。看中庭景观,不到约140㎡的户型竟然能配浴缸!

点击输入图片描述(最多30字)

建面约154㎡四房户型:

四面宽,南向总面宽约14.2米,客厅面宽约4.3米,进深约7米,客餐厨阳台一体化,主卧面宽约3.8米。三阳台(交付后不破坏外立面可以自行打通改造)、主卧大转角飘。

点击输入图片描述(最多30字)

点击输入图片描述(最多30字)

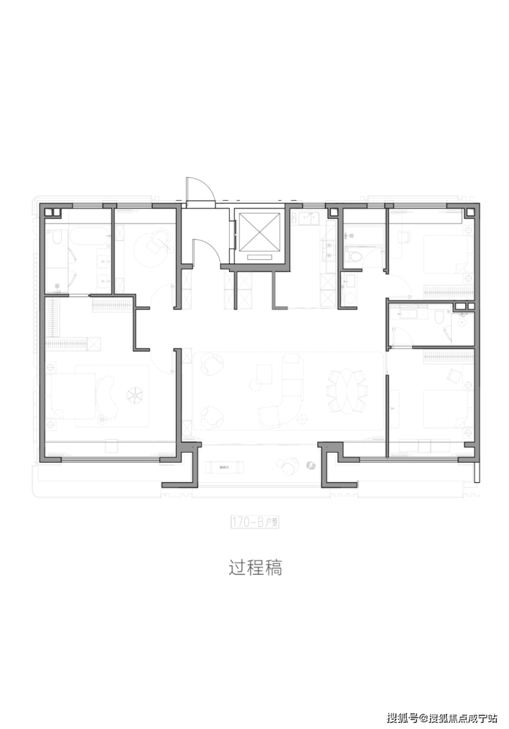
建面约170㎡户型:

五面宽设计,南向总面宽约17.2米,餐客厅面宽约8.2米。主卧面宽约5.4米,尊崇独立衣帽间,空间阔绰可分男女。三个套房。独立八百库收纳、卫浴收纳拉满。

点击输入图片描述(最多30字)

保利·誉滨江还带来了约3000㎡会所体系,由约1500㎡下沉式景观会所与约1500㎡架空层泛空间共同构成。

设计融合曲面金属与天然石材,呈现兼具未来感与奢华格调的美学表达。

功能上涵盖全维度生活场景:地下会所设置恒温泳池、健身房、瑜伽室、男女干蒸房及带自然采光的地下光厅。

点击输入图片描述(最多30字)

同时配备私宴厅(含厨房)、咖啡茶歇区、红酒品鉴区、室内高尔夫、棋牌室及深度洽谈区,满足高端社交与品质休闲需求。

架空层功能根据家庭需求规划,分别服务于儿童、女主人及男主人,精准适配每一位家庭成员的生活需求。

从社交、健身到休闲,一切所能想到的生活需求,皆在此得到细致回应。

区位方面,该地块位于杨浦滨江南段的黄金位置,直线距离黄浦江仅约500米。

周边配套一应俱全,交通上北横通道、中环军工路等主干道环绕周围,距离12号线爱国路站步行距离约700米。

点击输入图片描述(最多30字)

教育上有平凉路第三小学、东辽阳中学、上海市第二十五中学,还有规划中的复旦国际学校。商业上有上海国际时尚中心和在建的超极合生汇。

此外,周围还有波阳公园、杨树浦电厂遗迹公园、上海市总工会沪东工人文化宫、白洋淀足球场馆等配套,能够满足文体休闲需求。

点击输入图片描述(最多30字)

从地理位置上来看,没有多大硬伤,加上东外滩的发展规划,以及复兴岛的产业加持,未来会有不错的预期。

杨浦新中心+双核辐射

「保利誉滨江」

首推建面约117-139㎡3-4房

售楼处&样板间已开放!

约10000㎡内外都心园林

约3000㎡泛会所与架空层

即将入市! 预约咨询热线:400-960-1656☎, 加微咨询:139 1616 5691(加微,不要来电,备注楼盘名字)

声明:本文由入驻焦点开放平台的作者撰写,除焦点官方账号外,观点仅代表作者本人,不代表焦点立场。