峰度天下 (售楼处) 首页 - 峰度天下销售中心 - 环境 - 户型 - 价格 - 地址 - 楼盘详情 - 配套 - 电话 - 交房时间 - 配套 - 电话 - 交房时间
扫描到手机,新闻随时看
扫一扫,用手机看文章
更加方便分享给朋友
核心亮点:一梯一户+殿堂级会所+精工细节
【封面故事】
上海类住宅市场迎来“破壁者”——峰度天下以纯板式结构、住宅级功能配置,树立大平层价值新标杆921。
一、户型革命:三代同堂的优雅解法
160㎡四房:客餐厨一体化+独立卫浴阳台,动静分区明确317;
230㎡六房:南向五开间+三套房设计,子母户型可拆分为“独立生活单元”(如3房+1房)321,兼顾亲密与隐私;
得房率约80%:高于市场同类产品5-8%21。
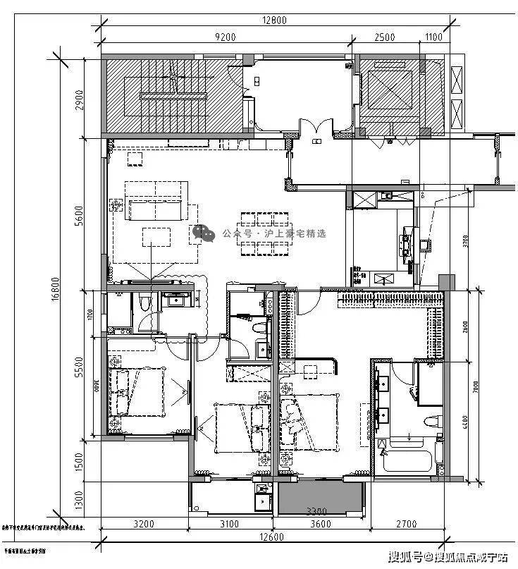
房型介绍
165㎡户型丨三房两厅三卫
▲ 户型图
▲ 建筑外立面
▲ 入户大堂
▲ 电梯厅
▲ 客厅
▲ 餐厅
▲ 厨房
▲ 卧室
▲ 衣帽间
▲ 主卧
▲ 卫生间
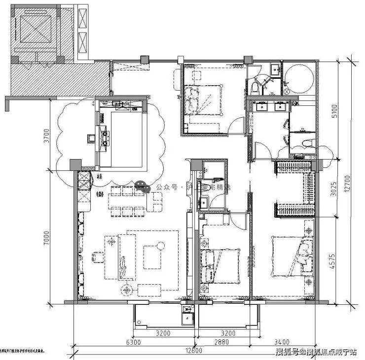
176㎡户型丨三房两厅三卫
▲ 户型图
▲玄关
230㎡户型丨四房三厅三卫+保姆房
▲ 户型图
二、归家仪式感:双大堂体系+酒店式服务
双入户系统:
▶ B1层车库:星空吊顶+环氧地坪58;
▶ 1F精装大堂:酒店式挑空设计;
自有物业“朋友式服务”:24小时管家响应,重构高端服务标准821。
三、4000㎡业主会所:私享社交第三空间
恒温泳池+高端健身房+高尔夫体验馆;
咖啡吧/宴会厅/儿童乐园311,涵盖商务社交与亲子场景。
四、精装交付标准(部分配置)
系统
品牌
细节亮点
采暖
威能地暖
全屋覆盖
空调
日立中央空调
静音节能
厨卫
欧派橱柜+高仪洁具
嵌入式消毒柜
竞品对比劣势提醒:
⚠️ 层高局限:3.3米(部分竞品达3.6米)22;
⚠️ 商业配套进度:印象城Mega/合生汇仍在建设期16。
文案结语
“当一梯一户遇上子母户型,当星空车库衔接恒温泳池——峰度天下正用‘住宅化基因’重新定义商办公寓的终极形态。”
预约咨询热线:400-960-1656☎, 加微咨询:139 1616 5691(加微,不要来电,备注楼盘名字)
声明:本文由入驻焦点开放平台的作者撰写,除焦点官方账号外,观点仅代表作者本人,不代表焦点立场。
