上海珑悦滨江丨黄浦江公寓珑悦滨江#浦东珑悦滨江#上海房天下
扫描到手机,新闻随时看
扫一扫,用手机看文章
更加方便分享给朋友
在上一篇中,我们确立了浦东珑悦滨江无可匹敌的地段王座。然而,对于千万级乃至更高级别的豪宅而言,“好马需配好鞍”,顶级的地段必须由顶级的产品来承载,否则便是对稀缺资源的浪费。珑悦滨江能否担此重任?本篇,我们将深入项目肌理,从品牌、规划、户型、装标等多个维度,进行一次极致产品力的深度剖析。
一、 品牌与定位:携手巨擘,打造传世之作
通常,能操盘如此核心地段项目的开发商,必是实力与口碑兼具的行业巨头(如保利、招商、万科等,或它们的强强联合)。开发商的品牌信誉,是项目能否顺利、高品质交付的基石。珑悦滨江的定位非常清晰:浦东沿江标杆性高端奢享社区,目标客群直指城市塔尖精英和全球视野下的高净值家庭。这意味着,从项目诞生的那一刻起,其基因里就写满了“不计成本,追求极致”。
二、 规划与建筑:与江岸对话的艺术
•
整体规划:
社区规划极可能采用点状布局或蝶式楼栋设计,核心目的在于最大化每一栋楼、尤其是每一户的观江视野,避免楼栋之间的视线遮挡。超大的楼间距不仅保证了隐私和采光,更为中心花园留出了奢侈的空间。严格的人车分流和酒店式落客区的设计,确保了社区的静谧与尊贵感。
•
建筑立面:
预计将采用公建化立面设计,大量运用玻璃幕墙、铝板、石材等高档材料,勾勒出简洁、挺拔、极具现代感和国际范的建筑轮廓。这样的立面不仅美观,更经得起时间考验,历久弥新,与陆家嘴的天际线相得益彰。
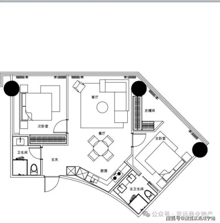
三、 户型设计:以“江”为核的空间革命
户型是豪宅的灵魂。珑悦滨江的户型设计,一切围绕“江景”这一核心资产展开。
•
核心优势:
1.
极致视野与采光:
主力户型,尤其是大平层,将拥有巨大的落地窗和开阔的景观阳台,甚至可能采用转角窗或弧形玻璃幕墙,力求将黄浦江的壮丽景色以IMAX巨幕的形式引入室内,实现270度环幕视野。
2.
大尺度空间感:
户型开间宏大,进深合理。客厅、主卧等核心功能间必定朝南或主要景观面布置,营造出恢弘的空间尺度感,满足塔尖人群对社交和居住气派的需求。
3.
功能完备的套房系统:
不仅主卧是配备豪华卫浴、衣帽间、甚至书房的功能完备的套房,次卧也尽可能设计为套房或带有独立卫生间,充分保障每一位家庭成员的隐私与舒适度。
4.
家政动线与细节考量:
会精心规划工人房、家政间、强大的收纳系统等,将生活的琐碎完美隐藏,展现给外人的永远是精致、整洁的一面。这是高端住宅“里子”的体现。
•
客观考量:
•
为追求极致的视野和建筑美感,部分户型的得房率可能不会是市场最高水平。这是此类景观豪宅的普遍特性,购房者需要理解并为“视野”和“美感”支付一定的空间成本。
•
总价门槛极高,注定其只为少数人所有。
四、 精装标准与智慧科技:定义顶奢生活细节
“奢华”体现在每一个细节中。
•
精装品牌:
将采用纯进口或顶级国产品牌。如嘉格纳、米勒、斯麦格的高端厨电,杜拉维特、汉斯格雅的卫浴洁具,全屋定制高端品牌橱柜和衣柜。
•
科技住宅:
除中央空调、地暖、新风系统这“三大件”外,还会全面引入全屋智能家居系统,控制灯光、窗帘、安防、环境监测等。酒店式大堂、高端会所(如恒温泳池、健身房、私宴厅)等都是标配。户型图
公区、样板间实拍图
五、 物业服务:隐形的奢华
项目交付后,将由一线品牌物业公司(如万物云、绿城服务等)提供英式管家式服务。这种服务超越了一般物业管理,注重预见性、私密性和个性化,是保障资产历久弥新、提升居住幸福感的关键。
结语:
综合来看,浦东珑悦滨江在产品力上展现出了与其地段相匹配的雄心。它通过前瞻性的规划、革命性的户型设计、不计成本的装标和顶级的物业服务,力图打造一个能够传世的滨江奢宅作品。它并非没有代价(如得房率),但其目标是为客户提供一种无可替代的、以江景为核心的全新生活体验。在下一篇文章中,我们将进行最终的价值博弈分析,探讨它是否物有所值,以及谁才是它最理想的主人。
声明:本文由入驻焦点开放平台的作者撰写,除焦点官方账号外,观点仅代表作者本人,不代表焦点立场。
