静安大宁「中建玖上琅宸」:2025中建玖上琅宸顶豪闭眼入,公园豪宅标杆!中建玖上琅宸售楼处最新发布!中建玖上琅宸权威资讯!
扫描到手机,新闻随时看
扫一扫,用手机看文章
更加方便分享给朋友
认筹时间:2025年11月5日9时00分—11月9日12时00分
认筹地点:上海市静安区广中西路199弄中建玖上琅宸营销中心
认购意向金:200万元整
开盘时间:2025年11月14日(摇号时间14:00,选房时间:15:38)
开盘地点:上海市静安区广中西路333号上海宝华万豪酒店
二批次加推8-7-1栋 150套房源:
128平91套约 1500-1900万
190平22套约2800-3000万
280平37套约4300-5000万

左右滑动查看更多
左右滑动查看更多

一批次:首开3号楼A,4号楼,5号楼,一共140套,其中128㎡户型66套,160㎡户型22套,190㎡户型22套,210㎡边套(四房)15套,210㎡中间套(三房)15套。







<< 滑动查看下一张图片 >>






左右滑动查看更多

1
项目规划情况
根据项目规划设计方案:项目拟建8栋12-24层高层住宅。
项目整体楼栋规划遵循“南向大户型、北向小户型”原则,蕞好的景观面留给大户型非常合理。270户型顶楼部分有私家泳池,大概率是项目的470楼王所在位置,东西向打通,1栋1套,共计也就2套。

从规划图来看,项目前排可直面大宁灵石公园无敌景观;而办公部分设置在地块东北侧,也有隔断进行出入口区分,对住宅部分来说几乎没有影响。

特色一:首层全架空,打造“悬浮社区”
项目8栋住宅楼全部首层架空,可以提供社区内部更多样化的功能组合,像是“泛会所”或是每栋楼不同的架空层功能空间,打造空间的可持续性。
特色二:地面0车位,大面积景观
社区内部全部2层地下车库,可留出更多空间打造地面景观。并且,项目“完全人车分流”设计,即:项目的人行和车行出入口是完全分开的,安全系出更高!

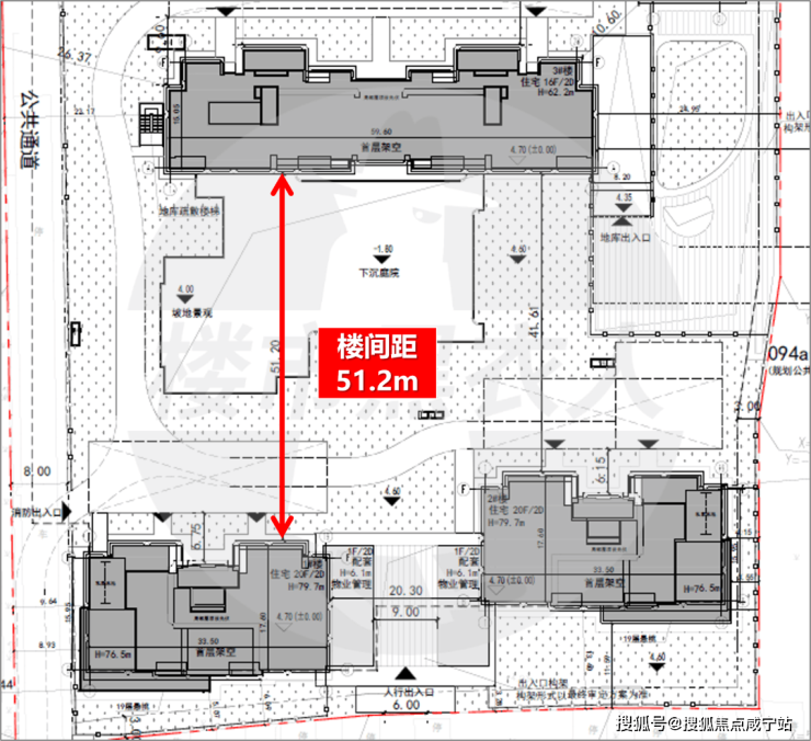
从规划图来看,社区内部广泛运用水景:共有2处大型集中水景+1处宅间水景,周边还有下沉庭院+坡地景观,大概率此处未来社区会所的位置。值得一提的是,项目的楼间距全部在35米以上,最大楼间距达到了约51.2米。

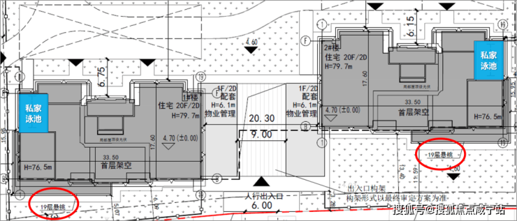
特色三:私家悬浮泳池,类别墅居住体验
蕞南端的1#和2#楼均配套有私家泳池,还在19F采用了住宅楼当中较为少见的悬挑工艺,延伸出了一定的使用空间,预计就是做类似于“悬挑泳池”的。这里应该就是传说中的“超级大平层”所在位置。

2
地块前情情况
9月14日,中建玖合在上海市2024年第五批供应商品住宅用地中,以63.66亿元成功获取上海市静安区灵石社区N070402单元094a-14地块,总计容建筑面积9.32万平方米。

该地块西侧是宝华万豪酒店,再往西就是大宁音乐广场,地块东侧就是新梅共和城,南侧刚好就是大宁公园,整体城市界面可圈可点。


094a-14地块用地性质为住宅与商务办公混合用地(Rr3C8) ,与静安天悦一样,都不是纯住宅地块。
该地块办公部分业态功能应符合中环两翼创新创意集聚带总体规划定位,积极发展总部经济、涉外经济,鼓励引入央国企、民企等各类企业总部入驻。
具体地块指标上:
占地面积约3.16万方,整体容积率2.95,其中住宅占比79%,总体量在7.37万方,按套均小于100㎡来估算,预计有超700套房源供应;按住宅限高80米来计算,供应产品为25-26层的高层产品,中规中矩的中小型社区。

地块与大宁公园隔街相望,西侧是大宁音乐广场,南侧不远处就是区域标杆商业大宁久光和大宁国际,东侧是新梅共和城住宅项目。交通出行:南北高架/地铁1号线上海马戏城站,马戏城站还有20号线在建,可以说是双轨交盘。
声明:本文由入驻焦点开放平台的作者撰写,除焦点官方账号外,观点仅代表作者本人,不代表焦点立场。
