金融湾·晶(金融湾·晶)首页网站丨上海(金融湾·晶)欢迎您-金融湾·晶|楼盘详情
扫描到手机,新闻随时看
扫一扫,用手机看文章
更加方便分享给朋友
金融湾·晶(二期)加推136席超配100㎡3房直面滴水湖景均价35203元/㎡另在售建面约99-460㎡湾心传世大宅
预约咨询热线:400-960-1656☎, 加微咨询:139 1616 5691(加微,不要来电,备注楼盘名字)
毫不夸张的说,无论是地理区位还是日后的规划等级,105片区都是整个临港的上佳区域。
105片区的定位是金融,规划对标的是浦东陆家嘴,目前也在慢慢的引进一些产业,同时正在建造地标建筑,其将逐渐成为临港的头部。

「金融湾 ·晶」便身处于105片区,是环滴水湖的绝对热盘,据悉,这个盘不是3.1人才,想要买到会非常困难。

从位置上看,「金融湾 ·晶」坐北朝南,位于滴水湖正北一环带,可以在阳台正面俯瞰滴水湖,邻近轨交16号线滴水湖站。项目毗邻两港快线开放区站(在建),北侧与56万方星空之境城市公园接壤。拥有绝佳地理位置和景观优势。
项目均价3.5万/㎡,是临港新房价格天花板,共777套房源。

「金融湾 ·晶」
注册名:滴水湖金融湾·天宸苑(西九)滴水湖金融湾·天辉苑(东九)
西九开发商:上海临港新片区金港西九置业有限公司
东九开发商:上海临港新片区金港东九置业有限公司
项目位置:滴水湖一环带总部湾区
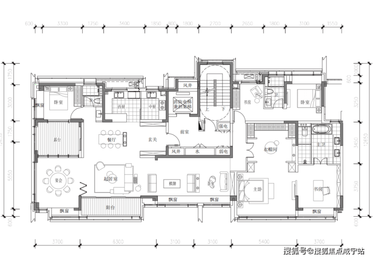
项目产品:平层 97、99、118、125、139㎡&复式及大平层 175、185、200、260(平层)、315㎡
项目网传户型图抢鲜看!
(户型图仅供参考,以开发商最终公布为准)

138平4房3厅2卫户型图

270平5房4厅3卫户型图

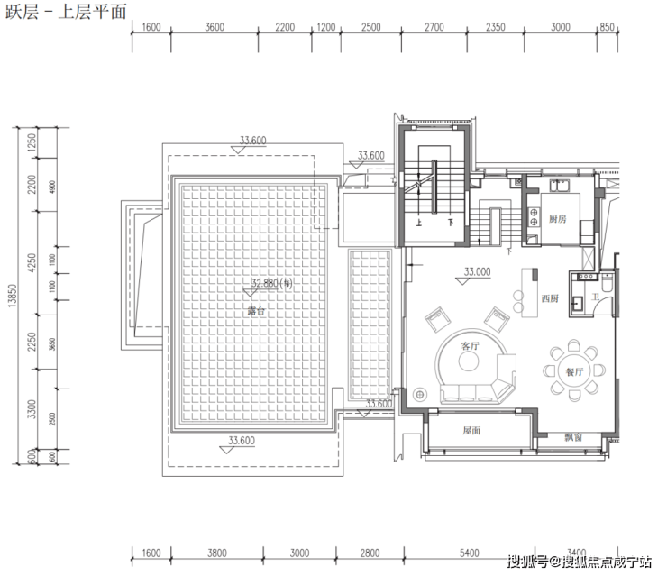
175平3房3厅3卫跃层

185平3房3厅3卫跃层

200平4房3厅3卫跃层

315平5房4厅4卫跃层
A户型 面积97㎡ 2房2厅1卫

B户型 面积99㎡ 3房2厅2卫

C户型 面积125㎡ 3房2厅2卫

175㎡+的超大户型仅21套
部分房源将达到千万级总价

占地面积:
金融湾 · 晶珏 约1.9万㎡,水芸北路501弄
金融湾 · 晶珺 约1.9万㎡,云鹃北路888弄
金融湾 · 晶玥 约1.2万㎡,环湖北二路518弄
金融湾 · 晶琇 约1.2万㎡,环湖北二路1088弄
交房时间:2024年6月底
绿化率:约30%
产权年限:70年
建筑风格:现代风格
物业公司:融创物业
物业费:4.5元/月/㎡
住宅层高:10-14层,一梯两户(无连廊)
车位配置:住宅车位 约1:1.1,人车分流,地下车库两层
装修标准:中央空调+地暖(品牌及其他装修项目后期将公示)
平层户型分布图:
复式及大平层户型分布图:
项目鸟瞰图:


项目效果图:


金融湾·晶(二期)加推136席超配100㎡3房直面滴水湖景均价35203元/㎡另在售建面约99-460㎡湾心传世大宅
预约咨询热线:400-960-1656☎, 加微咨询:139 1616 5691(加微,不要来电,备注楼盘名字)
声明:本文由入驻焦点开放平台的作者撰写,除焦点官方账号外,观点仅代表作者本人,不代表焦点立场。
