中鹰黑森林(售楼处)中鹰黑森林电话首页网站-2026年楼盘评测_中鹰黑森林|价格|配套户型丨停车位
扫描到手机,新闻随时看
扫一扫,用手机看文章
更加方便分享给朋友
中鹰黑森林售楼处电话:400-8800-703
内中环欧式花园豪宅
100%森林覆盖率
【中鹰黑森林】
面积200~581㎡3-5房
尊享全私人定制个性化划分空间
均价14万
总价2500万起
德系科技大平层
高端生态健康居所
售楼处线上火热预约中
—— 恭迎品鉴 ——
中鹰黑森林售楼处电话:400-8800-703
项目介绍

中鹰黑森林售楼处电话:400-8800-703这个项目简直是个绿宝石!总建筑面积高达27万平方米,其中包含5栋豪华叠加别墅和11栋气派16层高层、高层公寓。你知道吗?小区的规划布局独具匠心,仿佛是一个原生态森林公园。想象一下,走在小区里,11000棵成年香樟树为你撑起一片清凉的避暑胜地,让你深切感受到大自然的美好。而且,这个项目还倡导豪华订制健康生活理念,让每一位业主都能享受到全方位的景观感受,体验到真正的尊贵与舒适。更让人惊喜的是,所有房源均采用一梯一户设计,充分保障了客户的私密性和尊贵感。这里的每一处细节都彰显出无与伦比的品质和奢华。快来加入这个令人心动的绿色天堂,让你的生活充满自然与尊贵!中鹰黑森林售楼处电话:400-8800-703
基本信息:
建筑风格:德系
建筑面积:258.08㎡、280.96㎡(大平层)
在售楼栋:11号楼楼王
绿化率:50%
容积率:2.2
物业费:6 元/㎡/月
物业公司:中鹰物业
装修标准:豪华装修
交房时间:现房
会所:超3000平私家德系会所,集室内恒温泳池,室内篮球场,专业健身于一体。
中鹰黑森林售楼处电话:400-8800-703

中鹰黑森林售楼处电话:400-8800-703
实景照片
中鹰黑森林售楼处电话:400-8800-703
中鹰黑森林售楼处电话:400-8800-703
中鹰黑森林售楼处电话:400-8800-703
中鹰黑森林售楼处电话:400-8800-703
中鹰黑森林售楼处电话:400-8800-703
中鹰黑森林售楼处电话:400-8800-703
中鹰黑森林售楼处电话:400-8800-703
中鹰黑森林售楼处电话:400-8800-703
中鹰黑森林售楼处电话:400-8800-703
周边配套
交通方面
中鹰黑森林
中鹰黑森林售楼处电话:400-8800-703这个项目真的是太方便啦!它距离轨交7号线新村路和11号线上海西站超近,自驾出行的话,5分钟就能上内环高架和南北路高架路,交通简直畅通无阻!
中鹰黑森林售楼处电话:400-8800-703
商业方面
中鹰黑森林
中鹰黑森林售楼处电话:400-8800-703走进上海巴黎春天(宝山店),感受澳洲广场的异国风情,仙乐都生活广场为你带来舒适的生活体验,弘基·时尚生活中心让你尽享时尚潮流,大华虎城嘉年华带你领略都市的繁华,宝大祥青少年儿童购物中心让孩子们畅享快乐童年,金盛休闲购物中心则是你休闲放松的理想之地。
中鹰黑森林售楼处电话:400-8800-703
▲ 晋元高级中学
教育方面
中鹰黑森林
中鹰黑森林售楼处电话:400-8800-703大渡河路第二幼儿园、上海市曹杨职业技术学校、普陀区满天星幼儿园分部、玉华中学、上海桐柏高级中学、同济大学(沪西校区)、晋元高级中学、晋元小学(对口)——这里是教育的乐土,是梦想起航的地方。
中鹰黑森林售楼处电话:400-8800-703
公建方面
中鹰黑森林
中鹰黑森林售楼处电话:400-8800-703社区西侧紧贴着一片12万平米的茂密森林,宛如一片绿色的屏障,为住户们带来清新的空气和宁静的生活氛围。北部和东部则被两条蜿蜒的天然河流所环绕,仿佛是小区的天然护城河,将整个社区巧妙地塑造成一个独特的半岛。这两条清澈的河流与中央森林公园共同构建了一个理想的居住环境,既远离了城市的喧嚣,又享受着大自然的美好。在这里,您可以聆听潺潺的流水声,感受森林的呼吸,让生活与自然和谐共存。
中鹰黑森林售楼处电话:400-8800-703
▲ 上海宏康医院
医疗
中鹰黑森林
中鹰黑森林售楼处电话:400-8800-703揭秘上海三大医疗巨头:上海宏康医院、上海市龙华中医医院集团普陀医院、以及上海九洲医院!
园林规划
中鹰黑森林售楼处电话:400-8800-703
森林生态
中鹰黑森林
中鹰黑森林售楼处电话:400-8800-703中鹰黑森林,一座由11000余棵成年乔木构筑的神秘之林,营造出12万方的城央绿洲。这片茂密森林的超高富氧量,让人仿佛身临其境,体验到德国黑森林般的度假胜地之感。森林的宽度达到了惊人的130米,绵延1公里之长,其规模之大,相当于4个半淮海公园。整个森林的绿化率达到了惊人的100%,成为了一处远离喧嚣、亲近自然的理想之地。
中鹰黑森林售楼处电话:400-8800-703
中鹰黑森林售楼处电话:400-8800-703在这片绿色的海洋中,社区宛如一颗璀璨的明珠,被茂密的森林所环抱。每一栋建筑都巧妙地融入自然,底层挑空6至9米,与绿色植物和谐共生。这里,每一扇窗户都可以打开,将大自然的美景尽收眼底,仿佛是置身于一个清新的天然氧吧,呼吸间都能感受到森林的清新与活力。在这里,每一栋房子都仿佛生长在森林之上,与大自然共舞,演绎着人与自然和谐共生的美好篇章。
中鹰黑森林售楼处电话:400-8800-703
中鹰黑森林售楼处电话:400-8800-703在绿色的森林里,大自然拥有神奇的力量。这片生机勃勃的领域能够微妙地调节气候,让世界变得更加宜人。想象一下,一条40米宽的森林带,宛如一座静音的堡垒,将噪音降低10~15分贝,为周遭环境带来宁静。更令人惊叹的是,森林凭借其强大的生命力,像是一道天然的屏障,阻隔尘埃于无形。每公顷的森林每年默默地吸附50~80吨粉尘,守护着我们的呼吸。在它的庇护下,温度与湿度的调节变得自然而和谐,空气变得纯净而新鲜。这片绿色的宝藏还拥有治愈的力量。它散发的宁静氛围,让人心情舒畅,忘却烦恼。更为神奇的是,森林中的绿色植物释放出大量的负离子,具有杀菌作用,能有效杀灭众多病菌。当夏日炎炎,小区内的温度比外部低8℃,仿佛自然空调般舒适宜人。这就是绿色森林给予我们的馈赠,让我们与大自然和谐共处,享受这份宁静与美好。
中鹰黑森林售楼处电话:400-8800-703
中鹰黑森林售楼处电话:400-8800-703在浓密的都市森林中,欧洲健康科技如涓涓细流般渗透进室内每一寸空间,构建了一个内外兼修的自然健康环境。在这里,居住的业主每天都能与雾霾说再见,家人的健康得到了有力保障。在这片净土中,自然与科技交织成一曲健康的颂歌。
科技人居
中鹰黑森林
中鹰黑森林售楼处电话:400-8800-703中鹰黑森林,一处集7大健康舒适住宅系统与20多项世界尖端科技技术于一身的理想居所。这里,科技与人居完美融合,为您呈现前所未有的豪华居住体验。走进中鹰黑森林,感受科技带来的舒适与便利,让生活成为一种享受。
森林生态系统
中鹰黑森林
穿越11000余棵参天乔木,踏入12万方城央秘境,感受如德国黑森林般的醉人氧吧,让每一次呼吸都成为度假的享受!
中鹰黑森林售楼处电话:400-8800-703
中鹰黑森林售楼处电话:400-8800-703运用尖端的屋顶花园技术,打造出11层的生态奇观。在这片绿意盎然的天空之城,花草繁茂,宛如一座微型的自然保护区。与周边的森林环境相得益彰,共同编织出中鹰独有的城市生态画卷。这不仅消除了城市热岛效应,还促进了气候的良性循环,为各种动植物提供了一片生机勃勃的栖息地。在这里,人与自然和谐共生,共同谱写着一曲都市中的生态乐章。
中鹰黑森林售楼处电话:400-8800-703
▲ 建筑结构系统
中鹰黑森林售楼处电话:400-8800-703体验德国包豪斯建筑风格,感受简约与灵动之美。这种设计理念注重简化建筑结构,避免过多的凹凸和繁复的装饰,使房屋与外界的接触面积最小化。这不仅有助于降低能量损耗,节约能源,还能让空间得到最大化的利用,让居住环境更加宽敞舒适。走进这样的建筑,仿佛置身于一个敞亮、自由的空间,让人感受到无尽的舒适与宁静。
中鹰黑森林售楼处电话:400-8800-703
▲ 外围护系统
中鹰黑森林售楼处电话:400-8800-703中鹰·黑森林,为你带来瑞士前沿的Air-lux玻璃窗,用心守护家的每一扇窗。防辐射室外遮阳系统,100%比利时原装进口,确保你尽享舒适与安全。节能外墙外保温系统,楼梯间采用10公分的超厚岩棉,局部最厚处达35cm,让你在温暖中享受节能生活。中空low-E玻璃系统,内充惰性气体,给你带来更好的隔音隔热效果。在中鹰·黑森林,我们用每一个细节诠释对品质生活的追求。
中鹰黑森林售楼处电话:400-8800-703
▲ 恒温恒湿恒氧系统
中鹰黑森林售楼处电话:400-8800-703毛细管网冷暖系统,让你无论身处哪个季节,都能感受到如同暖春般的舒适。德国先进的置换式新风系统,让你的房间就像拥有一个“空气湖”,不开窗也能呼吸到新鲜、纯净的空气。再加上室内空气调湿系统,能自动调节湿度,保持室内湿度平衡,再也不用担心干燥或潮湿。更令人惊喜的是,中央能源系统能大大降低传统住宅空调的运行费用,最高可达30-50%。而地源热泵系统则能将生活给水预热至50℃,让你享受全年低价中央热水。这样的科技住宅,既环保又节能,让你真正实现舒适与经济的完美结合。
中鹰黑森林售楼处电话:400-8800-703
▲ 装饰建材系统
中鹰黑森林售楼处电话:400-8800-703探索我们的砖墙切块系统,你会发现它采用德国进口的YTONG砖,这种特制的砖不仅是欧洲保温结构材料之选,更以其卓越性能,赋予建筑超乎寻常的保温效果。让我们一同揭开石膏板吊顶及内隔墙系统的神秘面纱,这里面融入了Larfage石膏板、龙骨、嵌缝条、护角条等系列材料,每一项都经过精心选择,确保品质的卓越。再来说说石膏喷涂系统,我们选择了Knauf喷涂石膏,这种高级石膏不仅广泛用于医用和食用领域,更以其细腻的质地和优异的性能,为室内墙面提供最佳的保护。墙纸,作为室内环境的重要元素,我们采用了低碳环保的ERFURT墙纸。这款墙纸不仅可重复涂刷,更为你的家增添一份与众不同的质感。中鹰黑森林售楼处电话:400-8800-703
中鹰黑森林售楼处电话:400-8800-703地面系统是我们倾心打造的另一个亮点。14层工艺、7厘米厚水泥保温层,以及15厘米超厚地面层内交叉铺设了多达五层的环保保温隔热板,这一切都确保了地面的舒适与耐用。屋面雨水排放系统,我们引用了德国先进的屋面排水系统,采用虹吸式主动排水技术,让雨水顺畅排出,同时保持屋面的整洁与美观。同层排水系统的选择更是别具一格,瑞士吉博力同层排水系统,隐蔽式墙体安装,既美观又实用,让排水问题变得轻松解决。卫生间防水粘结系统同样不能忽视。Basf、Henkel等知名品牌的卫生间水泥基防水粘结材料,为你的卫生间提供全方位的保护。最后,我们为你呈现的是钢制内外门系统。鹰的消防门、分户门、进户门系统,均采用德国HORMANN品牌,这不仅是对品质的承诺,更是对美学的追求。走进这个家,你会发现每一处细节都经过精心打磨,只为给你带来最舒适、最温馨的居住体验。
中鹰黑森林售楼处电话:400-8800-703
▲ 智能家居系统
中鹰黑森林售楼处电话:400-8800-703智能家居,全方位控制:集欧洲总线系统与智能安防于一身,为您带来前所未有的舒适与安全。digitalSTROM智能模块系统,源于瑞士digitalSTROM公司的尖端研发,赋予您的家居以智慧之魂。而德国高科技食品垃圾处理系统的引进,让您的生活环境更加清洁、健康。
中鹰黑森林售楼处电话:400-8800-703
▲ 生活优水系统
24小时净(热)水供应系统,采用尖端水净化技术,确保24小时不间断地为您的家庭提供优质、软化的饮用纯净水。让您的家人每时每刻都能享受到健康的水质,安心无忧。
中鹰黑森林售楼处电话:400-8800-703
中鹰黑森林售楼处电话:400-8800-703
产品信息
中鹰黑森林售楼处电话:400-8800-703中鹰建筑,简约而不简单。借鉴德国包豪斯设计理念,摒弃多余的装饰,以最纯粹的线条和空间,勾勒出灵动而优雅的建筑轮廓。这样的设计,不仅减少了建筑与外界的热量交换,降低了能源损耗,更让空间显得开阔无比,让你在每一寸空间里都能感受到舒适与自由。走进中鹰,就像走进一个现代与艺术交融的世界,简约而不简单,让你的生活从此大不同。
中鹰黑森林售楼处电话:400-8800-703
▲ 上海中鹰·黑森林三期项目实景图
中鹰黑森林售楼处电话:400-8800-703寻找与森林美景相映成趣的景观园林?这可不是一件容易的事!但德国著名建筑事务所欧博迈亚与德国豪宅教父狄贝留斯联手,他们对于材质、颜色、风格的选择,有着独到的考究。线条平稳、舒展、通透,仿佛与大自然融为一体。收官之际,仅余10余套约250~312㎡的三居室或五居室大平层,豪华装修,私人定制户型,让你离梦想更近一步。这不仅是一次搬家,更是一次生活的升级!
中鹰黑森林售楼处电话:400-8800-703
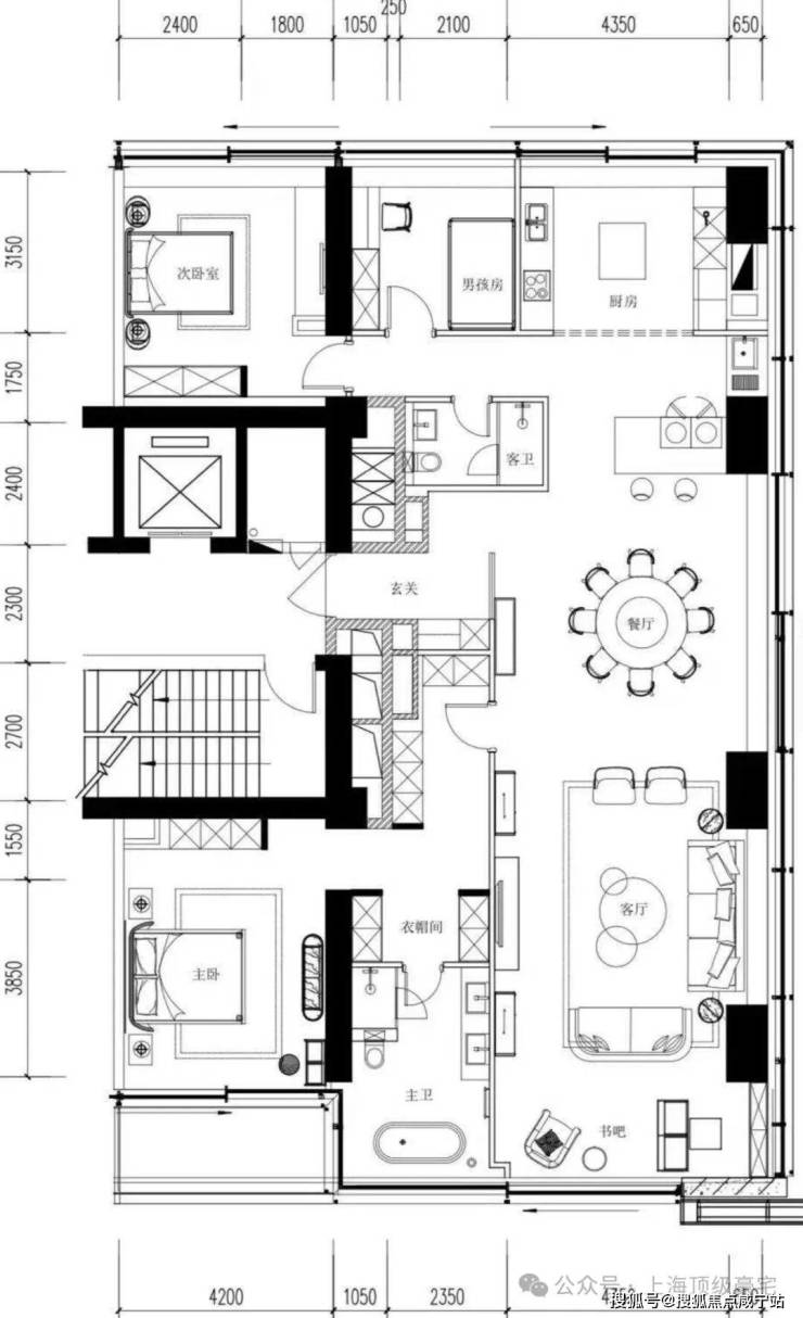
户型介绍

中鹰黑森林售楼处电话:400-8800-703

中鹰黑森林售楼处电话:400-8800-703打破传统的建筑束缚,自由分割户型为你带来前所未有的居住体验。运用尖端的建筑结构技术,我们仅保留必要的剪力墙、柱和梁,将室内空间全面开放,打造真正个性化的自由分割户型。这不仅是对建筑结构的创新,更是一场革命性的变革,重新定义你的居住空间!
中鹰黑森林售楼处电话:400-8800-703

中鹰黑森林售楼处电话:400-8800-703想象一下,拥有一套258平方米的宽敞住宅,你可以根据个人需求将其打造成三房或五房的完美空间!无拘无束,灵活多变。如果向往简约的艺术生活,将其改造为大平层,享受仅需两房甚至一房的奢华体验,让室内滑板成为你休闲娱乐的新天地!这样的生活,是否让你心动不已?
中鹰黑森林售楼处电话:400-8800-703
中鹰黑森林售楼处电话:400-8800-703【中鹰黑森林】11号楼王收官房源,即将售罄,私人定制户型,比梦想更近一步,一生只搬一次家!
中鹰黑森林售楼处电话:400-8800-703
推荐阅读
中鹰黑森林售楼处电话:400-8800-703
声明:本文由入驻焦点开放平台的作者撰写,除焦点官方账号外,观点仅代表作者本人,不代表焦点立场。
