中信泰富外滩道 (售楼处) 官方网站 - 中信外滩道销售中心 - 环境 - 户型 - 价格 - 地址 - 楼盘详情 - 配套 - 电话 - 交房时间 - 配套 - 电话 - 交房时间
扫描到手机,新闻随时看
扫一扫,用手机看文章
更加方便分享给朋友
四座文保建筑为底蕴的生活综合体 以开发实力,为未来预演 全楼栋架空层,全风雨连廊归家路 海派风华艺术立面,无死角审美体验 多重归家景观体系,艺术化生活预告 约190㎡,大四面宽宅邸 约190㎡,云端瞰江,东边套顶配 约120㎡,一梯一户敞阔人居
上海黄浦江的滨江带,毫无疑问是专属于上海豪宅的基因与底气。无论从历史底蕴的源远流长,还是从未来规划的倾斜发力,滨江带都可以担得上“封面”之名。
今年来看,滨江板块总计新增供应仅有2173套,其中,内环仅有745套,占今年上海全部新增商品住宅的2%。
在这其中,真正距江约500米位置又少之又少。
而在两年前,中信泰富地产联合杨浦国资,以超百亿的大手笔投资入驻这一处历史风貌保护项目,在陆家嘴滨江金融城之后,又一次为滨江封面而来。



约120㎡户型样板间实景



约190㎡户型样板间实景
01
唯一在售南向直面江景
行走在历史中的摩登生活
2023年11月13日,中信泰富地产联手杨浦国资,以114亿的大手笔投资,一口气拿下四宗用地。
其中,包含3宗低密度住,以及1宗综合用地,遴选要求之高,对资产规模、历史修缮经验以及商业运营都提出了要求。
这是对内环滨江最后一处留白地的慎重,也点燃了对这项重磅城市更新的期待。

这样的位置,必然要承担相应的责任——“世界级城市会客厅”,前是百年外滩,对岸是陆家嘴城市天际,背后是海派文化源远流长。
为此,中信泰富地产提出了“外滩之上,摩登共生”的理念,要为黄浦江畔再添一座摩登地标。
作为四宗用地中的首发地块,外滩道秉持了超前的开发理念:未来摩登共生体。

社区转角效果图,仅为示意
在首发地块中,包含了4幢文保建筑,在设计师的精心布局之后,被串联在了福禄街为核心的轴线两侧。
从市集到餐饮,从快闪空间到咖啡休闲,从屋顶花园到潮流旗舰……
这不仅仅是城市的厚重历史在重新开始呼吸,也是国际都市高度复合的未来生活,在此开启。

我们以其中与住宅距离最紧密的慈航医院旧址组团为例,看看中信泰富外滩道的设计师,考虑的多么细致。
其一,整个组团面向南侧与西侧为主要开口,与住宅隔绝。这就达成了混合开发的基础——享受配套,也享受私密。

效果图,仅为示意
其二,设计对标香港元创方,将在开阔的中庭中,打造全天候集市空间,以餐饮、零售为主要业态。
在上海,也有一个类似体量的商业体可供想象,就是从去年开始就颇受好评的鸿寿坊,在一个市集中,有茶馆也有咖啡,能吃一碗面也能啃两个汉堡。
匹配生活需求的,才叫“好配套”。

香港元创方实景,图源网络
其三,兼具历史与国际的门面。
功能之上,中信泰富自然也不会放弃社区风格上的打造。南侧主入口一侧为文物保护点,通过精心修缮,从清水砖墙面到红砖花饰,每一处细节都按照历史照片对比复原,延续海派气质,彰显当代活力。

文物保护点修缮效果图,仅为示意
中信泰富地产一直聚焦于城市综合体的打造,从1993年开始,以上海为起点,已经布局全国。
而在上海的两大落子,分别为陆家嘴滨江金融城,以及南京西路中信泰富广场。
前者延续百年船厂,重金投资200亿,打造重量级商办综合之外,还囊括九庐这样的滨江豪宅、以及文华东方这样的顶奢艺文酒店。
后者,则占据南京路“梅泰恒”核心一脚,同为上海、或者国内顶尖重奢商场以及写字楼。

陆家嘴滨金融城实景
正是这样的实力,才能在地块当初组团遴选中,一举夺魁。
而黄浦江的飘带上,也将迎来重要一笔。
02
以海派风华,见未来人居
全架空、全连廊、全立面
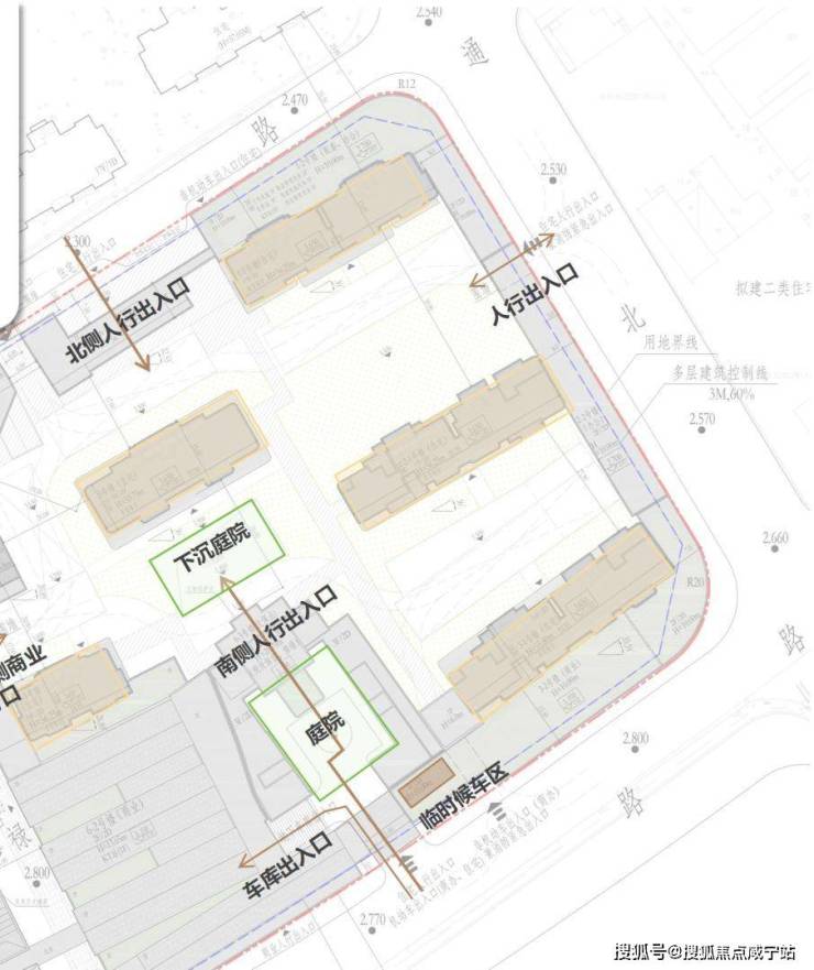
回到住宅部分,封闭式纯住宅小区布局在了地块东侧。
最主要的出入口布局在南侧,通过一个内凹式的花园,就将小区出入口与外部城市的喧嚣隔绝开来,而开车的业主,也将在这里有自己的流畅分流路线。
其他出入口则与隔壁的配套综合体,保持着克制的关联。
西侧一处人行出入口,保障业主平日使用的流畅。
东侧北侧出入口,则提供更多与城市的关联。
这样的设计手法只顶尖酒店才会使用,将大门退隐到一重院落之后,取巧,取静,取隐秘。
而在主入口之后,正是公区环绕的下沉会所,以及一侧的景观廊道,由历史而入门,当代审美在高低错落间,打造了模版级城央体验。

南侧主入口效果图,仅为示意
对住宅楼栋来说,架空层基本上都在6米以上,5号楼楼王的架空层,更是达到了约7米层高。
这样的魄力,即便在当前的市场中也是极为罕见。相当于起步楼层已经在3层位置或以上!
一方面完全规避了低楼层的隐私保护等问题,另一方面也为首层的景观花园,提供了视线穿透的机会,不同的景观庭院之间真正实现步移景换,永不落空。

架空层效果图,仅为示意
架空层之外,中信泰富外滩道还做到了全楼栋风雨连廊贯通!
从主入口进门开始,连续的风雨连廊将各个楼栋都串联在网下,在今年越来越阴晴不定的天气之下,随时可以放心下楼遛弯或遛狗,大约也是重要的生活体验。

风雨连廊效果图,仅为示意
立面上,浅色铝板与香槟金铝板为主材料,架空层则主要使用浅色石材。
外侧转角的圆弧线条,让南侧立面圆滑过渡到侧面,这也是中信泰富外滩道在立面上投入重金的一个细节——
不同侧面,同一个标准。
楼栋中央用笔直的竖向线条,延伸到顶部头冠,让楼栋的气质愈发挺拔,也呼应了海派风格。

立面正向与侧向效果图,仅为示意
走进大堂与电梯厅,统一的色调与气质也得到了延续。根据我们拿到的方案剧透,首层大堂中,不仅还会出现独立的下沉庭院,还会有供业主使用的私享会客厅。
同样也是奢牌酒店级装标,从不同石材的复合利用,到层高的充分利用,还有弧线设计元素的贯通……
设计与施工难度上不断抬升,才有了无出其右的空间效果。

首层大堂效果图,仅为示意
主入口-花园中庭-下沉庭院-云栖客厅-秘境花园。
五重地上归家景观体系,打造出的是丰富灵动的景观体系。
南侧海派风貌+花园中庭,北侧横向展开摩登风范,两大主入口彰显社区多面理念。

北侧主入口效果图,仅为示意
下沉庭院绿意与水系交织,泳池、健身、瑜伽……多种会所功能环绕。地面风雨连廊串联到不同单元入口,而在门前,依然有秘境花园安静等候业主归家。

03
首推约100-220㎡艺文之邸
全弧形转角领衔“好房子”新标准
作为首推地块,主力面积段为约190㎡以及120㎡两档,5号楼楼王则为约220㎡顶豪,以及少量约100㎡产品。

上海“好房子”规范在上个月刚刚出台,其中对每一套户型所能拥有的阳台面积有了巨大突破,在我们之前分析中,这次规范的更新可以说是上海新建商品住宅一次“断代式的飞跃”。
在中信泰富外滩道的产品中,我们就能看到全新的领先产品形态。
首先来看主力约190㎡户型,分布在两栋单元的西边套。

总面宽可以算得上约4.5面宽,正中半开放式厨房-餐厅-客厅-阳台,南北面宽几乎相同,极为轩阔的共享空间体验。
半开放式厨房北侧衔接独立家政间以及设备平台,与居家互不干扰。
客厅阳台,南次卧阳台,北次卧阳台,三大阳台极大扩展套内空间。这也是新规执行后,最能给购房者带来实际收益的地方。完全扩展后,完全可以对标老规范中200㎡以上的产品套内体验。
弧形转角阳台、主卧弧形转角窗,不仅是呼应立面设计理念,也柔化了室内空间,带来更舒适连贯的转角观景体验。
其余一梯一户、独立玄关、主卧酒店式套房等等必备的豪宅要素自然也没有缺席。

另一款约190㎡户型,则主要布局在东边套,更加一线瞰江的景观视野,也让中信泰富外滩道选择了不同的产品策略。

同样一梯一户的私享电梯厅进门,将通过艺术长廊,双面景观客厅就呈现在眼前。
弧线设计元素同样在这里得到了完美延续,一体式玻璃幕墙包裹的客餐厅,将可以享受真正无界向外延伸景观视野。
半开放厨房依然北侧有独立家政间与设备平台。
其他空间通过经典十字序列厅有机组织:南侧双套房,均有南向阳台。主卧套房升级对标行政套房,衣帽间串联五件套卫浴空间,纵享奢华体验。
双北次卧扩展后尺度类似,与近距离的公卫,可组成两间类套房,不同的家庭成员都能享受到私密与便利。

通过以上两个产品,我们就能清晰看到中信泰富外滩道对新一代户型设计的深刻理解,以及对生活方式的观察引领。
比如足够尺度且匹配的半开放厨房,在如今的市场中就很难看到,而对不同家庭成员的平权与尊重,更是贯穿始终。
这是一个出乎意料的产品。

在约120㎡这个面积段,上海类似的新房供应不计其数,几乎可以称得上最大量供应的面积段之一。
正是在这样的竞争中,我们看到新的“好房子”规范之下,中信泰富外滩道做到了“我全都要”。
要一梯一户,也要独立玄关。
要舒适宽厅,也要独立餐厅。
要主卧套房,也要正三房完全匹配卧室尺寸。
而这些,在这一款约120㎡户型中都做到了。
通过南向两个大阳台,极大扩展了套内空间,让使用面积几乎看齐140㎡同类型产品。

此外,首批地块中,还有少量约100㎡上车户型,同样做到了双阳台,主卧套房,以及一梯一户等核心配置,适合作为上车户型。
最后,就是5号楼楼王,约220㎡奢宅,作为最后、最珍贵的惊喜、值得各位前往售楼处一饱眼福。
04
全球灵感水岸
为数字时代的江河流向干杯
杨浦滨江坐拥约15.5公里滨江岸线,是上海中心城区浦西这一侧,最长的水岸线。
从百年工业遗产,到如今的世界客厅,杨浦滨江成为了上海中心城区最后一片可开发的珍稀地块。

而黄浦江叠加历史风貌,整个上海已是凤毛麟角。
距离滨江仅约500米,成规模开发的纯风貌住区,仅有中信泰富外滩道一处。
真正意义上,错过再无。

声明:本文由入驻焦点开放平台的作者撰写,除焦点官方账号外,观点仅代表作者本人,不代表焦点立场。
