保利新江湾(上海)首页网站-2026楼盘评测_保利新江湾|最新价格|配套户型
扫描到手机,新闻随时看
扫一扫,用手机看文章
更加方便分享给朋友
保利新江湾售楼处电话:400-8800-703【预约看房热线】保利新江湾官方售楼处电话:4008800703【售楼处电话/地址】保利新江湾售楼处电话:400-880-0703【开发商认证】
最新消息,
保利发展杨浦新江湾项目
即将上市!
将打造洋房+叠加+联排低密生态氧吧
将推出建面约103-140㎡洋房
建面约160-185㎡叠拼
以及建面约192-320㎡合院产品
上海杨浦【保利新江湾】
售楼处电话☎:400-8800-703【售楼处预约热线】(一对一热情服务)
如有问题欢迎来电咨询,预约来电尊享购房优惠,可预约案场内部销售人员,专业一对一热情服务,让您用专业眼光去买房。
Shanghai Yangpu Poly New Jiangwan
Sales office phone number ☎: 400-8800-703 [Sales Office Reservation Hotline] (One on One Enthusiastic Service)
If you have any questions, please feel free to call us for consultation. You can make an appointment to enjoy the house purchase discount by calling us. You can also make an appointment with the on-site sales staff for professional one-on-one enthusiastic service, allowing you to buy a house with a professional eye.

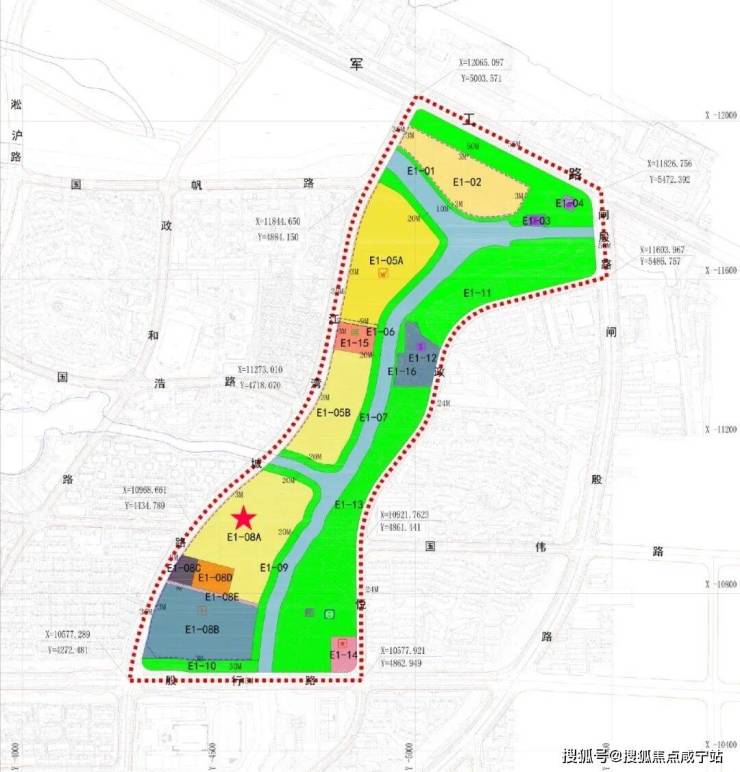
2025年9月3日,杨浦新江湾E1-08A地块由保利发展与上海地产通过股权转让联合拿下。出让总价37亿元,成交楼面价5.89万元/㎡。项目容积率仅约1.1,限高约20米。
其土地面积约5.71万㎡,建筑面积约6.28万㎡,住宅套数下限为455套;这也是保利发展首次在新江湾城板块拿地。
保利新江湾售楼处电话:400-8800-703【预约看房热线】保利新江湾官方售楼处电话:4008800703【售楼处电话/地址】保利新江湾售楼处电话:400-880-0703【开发商认证】
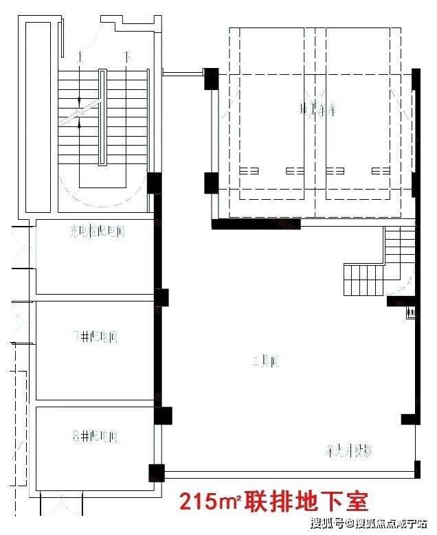
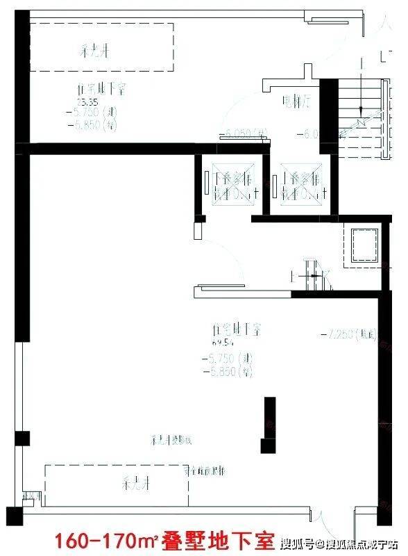
根据最新网传消息,项目售楼处电话:400-8800-703预计建造约238套100-139㎡6层洋房,48套160㎡叠墅(上下叠),68套170㎡叠墅(上下叠),47套190㎡联排别墅,24套215㎡联排别墅,11套260㎡联排别墅,2套350㎡联排别墅。

保利新江湾售楼处电话:400-8800-703【预约看房热线】保利新江湾官方售楼处电话:4008800703【售楼处电话/地址】保利新江湾售楼处电话:400-880-0703【开发商认证】
项目容积率仅1.1,打造两面环水景观低密社区,建造明确有会所。
地块本身就处于新江湾城湿地和水系包围之处,从小区的楼栋分布图来看,滨河的基本都是大面积的联排别墅户型,景观应该相当不错。
项目售楼处电话:400-8800-703 南侧不远处是杨浦德法学校,再往南就是目前新江湾城板块在售的新盘建发海宸,未来入市,相信能和建发海宸形成协同作用,共同提升新江湾城板块的居住焕新价值。
让我们来看看公开文件展示的部分过程稿户型图,户型很多,仅展示一部分。
特别声明哈,以下户型图仅为招标过程中的过程稿版本,最终以开发商公示为准!
保利新江湾售楼处电话:400-8800-703【预约看房热线】保利新江湾官方售楼处电话:4008800703【售楼处电话/地址】保利新江湾售楼处电话:400-880-0703【开发商认证】
保利新江湾售楼处电话:400-8800-703【预约看房热线】保利新江湾官方售楼处电话:4008800703【售楼处电话/地址】保利新江湾售楼处电话:400-880-0703【开发商认证】
保利新江湾售楼处电话:400-8800-703【预约看房热线】保利新江湾官方售楼处电话:4008800703【售楼处电话/地址】保利新江湾售楼处电话:400-880-0703【开发商认证】
保利新江湾售楼处电话:400-8800-703【预约看房热线】保利新江湾官方售楼处电话:4008800703【售楼处电话/地址】保利新江湾售楼处电话:400-880-0703【开发商认证】
保利发展此次立足于新江湾城再启新章,秉持江河共建的匠心,持续赋能杨浦,继续让板块再度沸腾,致献更新的国际人居低密典范。
新江湾坐拥9.45平方公里原生湿地、60%绿化覆盖率,PM2.5浓度常年低于市区20%,堪称上海主城罕见的“绿宝石”。
未来,在上海主城这样极度稀缺的地块,保利发展将集全国之力,聚全城资源,在新江湾再创巅峰之作——主城稀贵1.1低密(近10年上海出让的1.1容积率以内的住宅用地仅占2-3%)、正南北朝向的墅质洋房和滨水别墅。
项目售楼处电话:400-8800-703 毗邻城市副中心五角场,周边合生汇、江湾里等大型商业环伺,满足高端消费需求;尚浦领世、字节、叠纸、汉高、耐克大中华区总部等7000余家科创企业环伺,形成“产城文化生态”深度融合的第三代国际社区。
保利新江湾售楼处电话:400-8800-703【预约看房热线】保利新江湾官方售楼处电话:4008800703【售楼处电话/地址】保利新江湾售楼处电话:400-880-0703【开发商认证】
上海乃至全国的顶级高校,复旦大学、同济大学、上海财经大学都在新江湾城。这些顶级学府营造了新江湾城浓厚的人文氛围,并为板块产业发展提供了源源不断的人才资源。
除却知名高校资源,新江湾城的基础教育也非常拔尖,同济一附中、兰生复旦中学、复旦二附中、上音实验学校、复旦科技园小学、中福会幼儿园、德法学校等名校为新江湾城居民的子女提供着优质的中小学教育。
产业方面,新江湾城作为杨浦超大规模产业园区的落户地,坐拥湾谷科技园、复旦软件园、创智天地3大产业园,集中了科技金融机构460家、科技型企业7000余家,其中耐克、IBM、AECOM、西门子、李尔、硅谷银行等跨国公司地区总部、研发中心纷纷落户。
新江湾E1-08A地块,不仅是保利发展参与上海城市更新的缩影,更是中国城市文明进阶的缩影——在这里,低密是敬畏,生态是天赋,而共建共生的理想,终将定义下一个城市国际传奇水岸墅区,成为绿宝石之上的永恒光辉。
上海杨浦【保利新江湾】
售楼处电话☎:400-8800-703【售楼处预约热线】(一对一热情服务)
如有问题欢迎来电咨询,预约来电尊享购房优惠,可预约案场内部销售人员,专业一对一热情服务,让您用专业眼光去买房。
Shanghai Yangpu Poly New Jiangwan
Sales office phone number ☎: 400-8800-703 [Sales Office Reservation Hotline] (One on One Enthusiastic Service)
If you have any questions, please feel free to call us for consultation. You can make an appointment to enjoy the house purchase discount by calling us. You can also make an appointment with the on-site sales staff for professional one-on-one enthusiastic service, allowing you to buy a house with a professional eye.
保利新江湾售楼处电话:4008800703【开发商售楼中心热线】保利新江湾营销中心热线400-880-0703保利新江湾售楼处地址400-8800-703,楼盘项目全面介绍,本电话为开发商提供线上预约售楼电话,楼盘项目全面介绍(包含楼盘简介,均价,房价,现房,期房,别墅,叠墅,大平层,价格,楼盘地址,户型图,交通规划,备案价,备案名,项目配套,样板间,开盘时间,认筹时间,楼盘详情,售楼处电话,最新消息,最新详情,周边配套,一房一价,最新进展等详情咨询)楼盘详情丨价格丨更多优惠丨机不可失丨欢迎致电丨诚邀品鉴!售楼处位置丨特价房丨工抵房丨剩余房源丨户型图丨最新消息丨免责声明:将文章内容综合来源于网络、只作分享,版权归原作者所有!!如有侵权,请联系我们,我们第一时间处理如有问题欢迎来电咨询,专业一对一热情服务,让您用专业眼光去买房。如果您想了解更多楼盘详情,欢迎提前预约拨打保利新江湾售楼处电话☎400_880_0703✔✔✔
100条基础知识大全
1.房地产:
是指以土地和房屋作为物质存在形态的财产。它是由房产和地产两大部分组成。所谓房产,是指以房屋作为物质载体的财产;所谓地产,是指以土地作为物质载体的财产。其特征有:(1)固定性;(2)永久性;(3)个别性;(4)保值性与增值性。
2.房地产业:
是指从事房地产开发、经营、管理和服务的产业。它包括:土地的开发、房屋的建设、维修、管理,土地使用权的有偿划拨、出让、转让、房屋所有权的买卖、租赁、典当、房地产的抵押,以及由此形成的房地产市场。
3.三通一平:
是指建设前期的开发工作,指施工现场达到路通、水通、电通和场地平整。“三通”是把开发区红线以外的道路,给排水管道、供电线引入施工现场,“一平”是把施工现场的土地进行平整。
4.七通一平:
指大的开发区或重要的开发项目施工准备工作的要求。“七通”包括道路通、给水通、排水通、电力通、通讯通、煤气通、热力通。“一平”是土地平整。
5.规划红线:
是对建设用地范围的标定,通常以用地角点的城市坐标或参照建筑物距离给定。
6.保障性住房:
是与商品性住房(简称商品房)相对应的一个概念,保障性住房是指政府为中低收入住房困难家庭所提供的限定标准、限定价格或租金的住房,由廉租住房、经济适用住房、两限房和政策性租赁住房等构成。
7.经济适用房:
指具有社会保障性质的商品住宅,是国家为解决中低收入家庭住房问题而修建的普通住房,具有经济性和适用性的特点。这类住宅因减免了市政配套等费用,(其中包括免去土地出让金,削减了市政配套费用的50%,并且优先享受银行信贷,其成本低于普通商品房,并且规定了较低的固定利润率3%),故又称经济实用房。
8.政策性租赁住房:
某些地区也叫公共租赁房,归政府或公共机构所有,用低于市场价或承租者能承受的价格向新就业职工出租。其目的是解决家庭收入高于享受廉租房标准而又无力购买经济适用房的低收入家庭的住房困难。
9.两限房:
全称为限房价、限套型普通商品住房,也被称为“两限”商品住房。两限房指经城市人民政府批准,在限制套型比例、限定销售价格的基础上,以竞地价、竞房价的方式,招标确定住宅项目开发建设单位,由中标单位按照约定标准建设,按照约定价位面向符合条件的居民销售的中低价位、中小套型普通商品住房。目前情况来看,首批限价房规定:限价房的套型建筑面积全部为90平方米以下。
10.自住型商品房:
北京市住建委2013年首次推出自住型商品房,此类住房价格比周边商品住房低30%左右,面向全市符合限购条件的家庭;购买此类住房后五年内不得上市,五年后上市收益的30%上交财政。套型建筑面积以90㎡以下为主,最大套型建筑面积不得超过140㎡
11.商品房分类:
按用途,可分为住宅、写字楼、商铺等;按楼层,可分为低层、多层、小高层、高层、超高层等。
12.低层建筑:
指1-3层的住宅建筑。多层建筑:指4-6层的住宅建筑。中高层建筑:指7-9层的住宅建筑。高层建筑:指10层至10层以上的住宅建筑或总高度超过24米的公共建筑及综合性建筑。超高层建筑:指高度超过100米的住宅或公共建筑。
13.住宅的耐久年限:
即住宅的使用寿命一般为50年。
14.会所:
以所在物业业主为主要服务对象的综合性康体娱乐服务设施。
15.塔楼:
以楼梯、电梯为核心所组成的住宅(一般为高层住宅)。
16.板楼:
由多个单元排列组成的住宅。
17.跃层:
一套住宅占有上、下两个楼层,上下层不通过公共楼梯而采用户内独有的内部楼梯联系上下层。
18.复式:
在建造上仍每户占有上下两层,但实际是在层高较高的一层楼中增建一个夹层。
19.错层:
户内楼面高度不一致,错开之处有楼梯联系。但没有完全分为两层。(适合大面积住宅,小户型会显得局促)
20.进深:
一间房屋从前墙皮到后墙皮之间的实际长度。
21.开间:
住宅的宽度,指一间墙皮到另一面墙皮之间的实际距离,也叫面宽。
22.标准层:
平面布置相同的楼层。
23.层高:
房屋一层的高度。指下层楼板面到上层楼板面之间的距离。
24.净高:
下层地板面或楼板上表面到上层楼板下表面之间的距离。净高和层高的关系可用公式表示为:净高=层高-楼板厚度。
25.建筑间距:
是指建筑之间应保持的合理距离。通常以日照间距来确定。即冬至正午时太阳光照经前幢房屋后檐至后幢房屋底楼窗台时两幢建筑之间的距离。确定标准:日照标准,住宅底层满窗日照不少于连续1小时(冬至日)或连续2小时(大寒日)。
26.日照间距包括正面间距和侧面间距。
27.日照间距系数:
按照日照标准确定房屋间距与遮挡房屋檐高的比值,板楼正南正北1.6、倾斜20度以上1.4。
28.户型:
每户居室的数量和大小。户型比:各种户型在总户数中所占的比例。
29.房屋产权:
指所有者对财产的占有、使用、收益和处分的权利,是物权的一种。指房产所有者按国家法律规定所享有的权利。
30.建筑面积:
套内建筑面积分摊的公用建筑面积。
31.建筑物内层高低于2.2米的楼层不计建筑面积。
32.套内建筑面积:
套内使用面积+套内墙体面积+阳台建筑面积
33.公摊面积:
公共门厅、过道、电梯井、楼梯间、垃圾道、变电室、设备房、地下室、值班进警室等以及其他功能上为整座楼服务的公共用房和管理用房的建筑面积。套和各单元与楼宇公共建筑空间之间的分隔以及外墙墙体水平投影面积的一半。
34.封闭阳台按实际面积计入建筑面积,未封闭阳台按实际面积的一半计入建筑面积
35.使用面积:
建筑物各层平面中直接为生产生活使用的净面积的总和,俗称地毯面积。
36.使用率:
使用面积与建筑面积之比。(使用率=使用面积/建筑面积)
37.实用率:
也称得房率,是套内建筑面积和建筑面积之比。(实用率=套内建筑面积/建筑面积)。
38.分摊的公用建筑面积:套
内建筑面积×公用建筑面积分摊系数。
39.公用建筑面积分摊系数=公用建筑面积/套内建筑面积之和。
40.容积率:
总建筑面积与建设用地面积之比。(容积率=地上建筑面积/项目占地面积)
41.建筑覆盖率:
又称建筑密度,是建筑物基底占地面积与规划用地之比。(建筑密度=建筑物占地面积/规划建设用地面积)
42.人口毛密度=项目估算人数/项目占地面积(单位:人/公顷)
43.绿地率:
是规划建设用地范围内的绿地面积与规划建设用地的用地面积之比。(绿化率=绿化占地面积/项目占地面积)
44.五证及发证机关:
(1)《国有土地使用证》(国土资源局)、(2)《建设用地规划许可证》(规委)、(3)《建设工程规划许可证》(规委)、(4)《建筑工程施工许可证》(住建委)、(5)《商品房预售许可证》(住建委)。
45.国有土地使用证:
是证明土地使用者向国家支付使用权出让金,获得了在一定年限内某块国有土地使用权的法律凭证。
46.土地使用年限:
(1)住宅用地70年;(2)工业用地50年;(3)商业旅游娱乐用地40年;(4)文教、卫生、体育用地50年;(5)综合用地50年;(6)车库用地50年。
47.建设用地规划许可证:
是建设单位在向土地管理部门申请征用、划拨土地前,经城市规划行政主管部门确认建设项目位置和范围符合城市规划的法定凭证,是建设单位用地的法律凭证。
48.建设工程规划许可证:
是有关建设工程符合城市规划要求的法律凭证。
49.商品房预售许可证:
是市、县人民政府房地产管理部门允许房地产开发企业销售商品房的批准性证件。
50.两书:《住宅使用说明书》、《住宅质量保证书》。
51.住宅质量保证书:
是房地产开发企业在商品房交付使用时向购房人提供的住房质量保证文件。
52.住宅使用说明书:
是房地产开发企业在商品房交付使用时向购房人提供的住房使用的说明。
53.商品房预售:
可简单理解为房屋还未建成就预先出售。是指房地产开发企业与购房者约定,由购房者交付定金或预付款,而在未来一定日期拥有现房的房产交易行为。预售前提为建设单位取得商品房预售许可证。预售许可证一般在房屋竣工备案后4个月或者初始登记取得大产权证时到期。
54.商品房现售:
房地产开发企业将竣工验收合格且已经初始登记的商品房出售给买受人,并由买受人支付房价款的行为。前提是开发商已经取得该房屋“大产权证”。
55.房屋所有权:
又叫房屋产权,是房屋所有人独占性地支配其所有的房屋的权利。房屋所有人在法律规定的范围内,可以排除他人的干涉,对其所有的房屋进行占有、使用、收益、处分。
56.产权证:
《房屋所有权证》的简称。是国家依法保护房屋所有权的合法凭证,是由人民政府房地产行政主管机关核发的具有法律效力的证件。房屋所有权人凭证出售、出租房屋。产权证包括以下几方面内容:产权类别、产权比例、房产坐落地址、产权来源、房屋结构、面积、共有数纪要、他项权利纪要和附记等,并配有房地产测绘部门的分户房屋平面图。2015年3月1日起《不动产登记暂行条例》正式实施,各省市随之陆续启动了《不动产权证书》代替《房屋所有权证》的工作。
57.初始登记:
即房屋所有权初始登记,指在依法取得的土地上,新建成的房屋权利人持有关证明文件,到县级以上的房产管理部门申请权属登记。俗称开发商办理大产权证。
58.转移登记:
即房屋所有权转移登记,在一手房买卖过程中是指将房屋所有权由开发商处过户到买房人名下,俗称办理小产权证。
59.个人住房贷款:
中国人民银行批准的商业银行和住房储蓄行,为城镇居民购买住房提供的贷款,执行法定贷款利率(也叫商业贷款)。购房人以所购房屋为抵押向银行借款,在未取得产权证并办理抵押手续前,由开发商给买房人承担担保责任。因此一般要求买房人委托开发商办理产权证以便及时办理抵押手续解除担保责任。
60.公积金贷款:
是政府政策性住房贷款,贷款对象必须是住房公积金的缴存人并需达到一定条件,贷款利率比商业贷款利率低。在未取得产权证并办理抵押手续前,由担保中心给买房人承担担保责任。因此会要求买房人委托开发商办理产权证以便及时办理抵押手续解除担保责任
61.购房人一般应缴纳哪几种税?主要是住宅专项维修资金(俗称公共维修基金)、印花税和契税。
62.契税:
指房屋所有权发生转移时,就当事人所订契约,按房价的一定比例向新的房屋产权人征收的一次性税收。一般在房屋交付时开发商代收或办理产权证时直接交给税务机关。征收标准:普通住房(家庭唯一)为总房款的1.5%,其它为3%。从08年11月1日起对个人首次购买90平米及以下普通住房的契税税率暂统一下调至1%。
63.普通住房:
(国办发[2005]26号)既《国务院办公厅转发建设部等部门关于做好稳定住房价格工作意见的通知》中对普通住宅的标准的规定为:住宅小区建筑容积率在1.0以上、单套建筑面积在120平方米以下、实际成交价格低于同级别土地上住房平均交易价格1.2倍以下。各省、自治区、直辖市要根据实际情况,制定本地区享受优惠政策普通住房的具体标准。允许单套建筑面积和价格标准适当浮动,但向上浮动的比例不得超过上述标准的20%。北京普通住房标准定为住宅小区建筑容积率在1.0以上、单套建筑面积在140平方米以下、实际成交价格低于同级别土地上住房平均交易价格1.2倍以下。实际成交价格每年或没几年做一次调整,因此具体价格规定网上查询。
64.印花税:
是对经济活动和经济交往中书立、使用、领受具有法律效力的凭证的单位和个人征收的一种税。08年11月1日以后对个人销售和购买住房暂免征收印花税,原印花税为总房款的万分之五,签约时缴纳并贴在房屋买卖合同上;但是,开发商还需按上述标准缴纳并贴在合同上。此外,买房人在办理产权证时还需需交纳5元/证的印花税,贴在产权证上,此税大多在办理入住时由开发商提前代收。
65.住宅专项维修资金:
俗称公共维修基金,住宅楼房的公共部分和公用设施、设备的维修养护基金。由北京市住房资金管理中心在办理初始登记(大产权证)时收取,有时在房屋交付时开发商或物业管理公司会代收。在08年1月31日前签订购房合同的按总房款的2%缴纳;在08年2月1日后签订购房合同的,六层及以下的住宅楼栋按照100元/平方米的标准缴存,七层及以上的住宅楼栋缴存标准为200元/平方米。住宅物业、住宅小区内的非住宅物业或者与单幢住宅楼结构相连的非住宅物业的业主,都应当按照国家规定缴纳专项维修资金。维修基金专项用于保修期满后住宅共用部位、共用设备和物业管理区域公共设施的维修、更新、改造。基金所有权归购房人,不得挪用。
66.中水:
指生活污水经过沉淀、过滤、消毒后,达到一定标准的水,可用于卫生间冲水、小区绿化灌溉、洗车等。
67.物业服务:
是指房屋产权人(又叫业主)或使用人(一般是住房的租赁者)通过合同或契约方式,委托专业机构或公司依照市场经营方式,运用现代管理法技术,为使房屋充分发挥其使用价值和经济效益而对房屋本身及其业主和使用者进行的管理和服务。
68.物业服务公司的义务概述:
受物业所有人的委托,依据物业服务委托合同,对其物业区域内的共有部位、共有设施设备进行保洁、保安、绿化及日常维护、养护、整治、并向物业所有人和使用人提供综合性的有偿服务。
69.物业服务的目标:
提供一个安全、舒适的居住、工作环境,使物业现有设备充分发挥其功能,提升物业的形象,使其保值、增值,有一定的经济效益。
70.物业管理服务费的构成:
保洁费、保安费、各项费用统收服务费、电梯费、高压水泵费、税费等。
71.地震烈度:
指地震时在某地点的震动强度。地震烈度分为1-12度,12度最强。北京市要求建筑采取8度设防指的就是8度的地震烈度。所谓烈度8度时的基本特征包括人行走困难、摇晃颠簸,建筑结构受损、中等破坏,干硬土出现裂缝。
72.按建筑的性质可分:
工业建筑和民用建筑。工业建筑指主要生产厂房、辅助生产厂房等生产性建筑。民用建筑指学校、医院、商场等公共建筑和居住建筑。
73.按建筑的使用材料可分:
砖混结构,钢筋混凝土结构,钢结构等。
砖混结构:建筑中竖向承重结构的墙、柱等采用砖或砌块砌筑,柱、梁、楼板、屋面板等采用钢筋混凝土结构,多用于六层以下民用建筑和小型工业厂房。
砖木结构:指建筑物中竖向承重结构的墙、柱等采用砖或砌块砌筑,楼板、屋架等用木结构。
钢筋混凝土:指建筑物中竖向承重结构如柱、梁、楼板用钢筋混凝土制成,墙用砖或其他材料填充,目前被大量采用。
钢结构:现在高科技技术,主要承重结构全部用钢材制成。主要用于超高层建筑和大跨度工业建筑。
74.按照结构的承重方式分为:
(1)墙承重式建筑;(2)框架结构建筑,用梁、板、柱组成结构体系来承受荷载的建筑。此时,墙体只起到围护、分隔作用;(3)剪力墙结构建筑,由纵向、横向钢筋混凝土墙组成的结构承受荷载的建筑,此时的墙体不仅能抵抗水平荷载和竖向荷载,还对房屋起到围护和分隔作用;(4)大跨度建筑,横向跨越30米以上空间的建筑;(5)排架结构建筑。
75.按施工方法分:
装配式建筑、现浇式建筑和装配整体式建筑。
76.建筑物构成的主要部分:
基础、墙体或柱、楼地层、屋顶、楼梯、门窗等六大部分。
77.楼梯:
是楼房建筑中联系上下各层的垂直交通设施。
78.管道井:
建筑物中各类公用管线集中铺设的垂直井道。包括:通风井;强、弱电井;水、暖管井。
79.门的功能:
是交通出入、分割和联系内部与外部或室内空间,有的兼起通风和采光作用。
80.窗的功能:
是采光和通风,同时也能起到美化立面的效果。
81.地基:
建筑物下面直接承受建筑物重量的土层。
82.基础:
建筑物的最下端与土壤直接接触的部分。
83.墙体:
是维护分割构件,同时也可以是承重构件。
84.墙体按其所处位置不同,分内墙和外墙。
内墙:位于建筑物内部的墙。
外墙:位于建筑物四周的墙。内墙的作用:分割房间。外墙的作用:是房屋的外维护结构,起着挡风、阻雨、保温、隔热等作用。
85.横墙:
沿建筑物短轴布置的墙体。
山墙:横向外墙。
纵墙:沿长轴布置的墙体。
女儿墙:是下部墙身延伸至屋面以上的一段墙体
86.墙体按结构受力情况不同,分承重墙和非承重墙。
承重墙指不但承受自身重量,同时还承受屋顶及楼板传来的荷载的墙。
非承重墙指不承受上部荷载的墙,包括隔墙、填充墙和幕墙。
87.墙体按所用材料不同分为砖墙、石墙、砌块墙、混凝土墙等。
88.防潮层设置
位置为室内首层地面结构层的中部,一般用防水砂浆抹20毫米厚。设置防潮层的目的是防止地下的潮气沿基础墙上升使室内墙体受潮。
89.勒角:
外墙墙身下部靠近室外地坪的部分。勒角的作用:防止地面水,雨水的侵蚀及人为的磕碰破坏,起着保护墙面,提高建筑物耐久性的作用同时也起美观装饰作用。
勒角经常采用抹水泥砂浆、贴面或加大墙厚的办法。
90.散水:
是靠近勒角下部的混凝土排水坡。散水的作用:迅速排出沿墙脚淌下的雨水,防止雨水直接进入墙下损害地基。
91.屋顶
是房屋上部的维护结构,同时又是承重结构。屋顶作用是抵御风霜雨雪的侵袭,防止太阳辐射,保温隔热。
92.屋顶按排水坡度不同,分为坡屋顶和平屋顶。
93.地下室:
建筑物下部的空间。也是基础的主要组成部分。地下室按使用性质分为普通地下室和人防地下室。
94.普通地下室:
普通地下空间,一般按地下楼层进行设计。
95.人防地下室:
全称是人民防空地下掩体(室),有人民防空要求的地下空间,是为战时人员隐蔽而设计的,和平时期可作它用,产权归属国家,不能分摊。人防地下室应妥善解决紧急状态下的人员隐蔽与疏散,应有保证人身安全的技术措施。
96.地下室按埋入地下深度分全地下室和半地下室。
全地下室指地下室地平面低于室外地坪的高度超过该房间净高的一半者。半地下室指地下室地平面低于室外地坪的高度超过该房间高三分之一,且不超过一半者。
97.踢脚:
是在内墙两侧的下部和室内楼地面交接处的构造。踢脚的目的防止扫地时污染墙面。一般应与楼地面材料一致。
98.伸缩缝:
解决由于不均匀的温度应力使过长的建筑物产生伸缩变形,一般常见于单元数较多的板楼中间。
99.从开启形式上窗分为平开窗、推拉窗、悬窗、固定窗。
悬窗分为水平旋转与垂直旋转两大类。
推拉窗分为左右推拉和上下推拉。
100.标高分为绝对标高和相对标高。
声明:本文由入驻焦点开放平台的作者撰写,除焦点官方账号外,观点仅代表作者本人,不代表焦点立场。
