楼盘项目全面介绍,本电话为开发商提供线上预约售楼电话,楼盘项目全面介绍(包含楼盘简介,均价,房价,现房,期房,别墅,叠墅,大平层,价格,楼盘地址,户型图,交通规划,备案价,备案名,项目配套,样板间,开盘时间,…
佰隽廷
售楼处电话☎:400-880-0703✔✔
如有问题欢迎来电咨询,来电即可享受买房优惠!
预约来电尊享购房优惠,可预约案场内部销售人员,专业一对一热情服务,让您用专业眼光去买房。
佰隽廷售楼处电话☎:400-880-0703✔✔
4008800703
中企三林滨江项目
案名-「佰隽廷」
预计主推建面约177-179㎡4房
价格约2000万左右
兴趣伙伴下方扫码可对接官方预约咨询
佰隽廷售楼处电话☎:400-880-0703✔✔

佰隽廷售楼处电话☎:400-880-0703✔✔
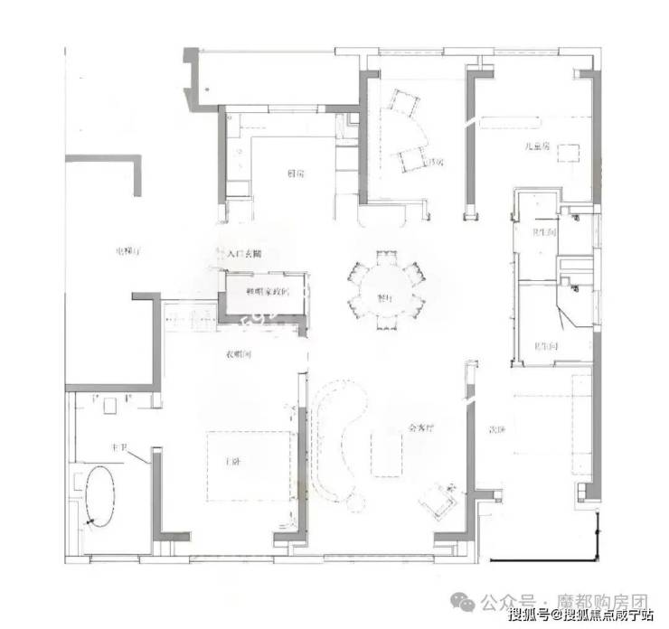
最新户型图过程稿如下:
(过程稿仅供参考,最终以开发商公布为准)
建面约177m²户型

佰隽廷售楼处电话☎:400-880-0703✔✔
建面约179m²户型

佰隽廷售楼处电话☎:400-880-0703✔✔
项目为三林滨江东区的两宗地块,预测为之前公示方案的07-02地块,以及07-05地块。
据规划方案显示,07-02地块拟建13幢9-13层小高层住宅,1幢6层多层住宅;预计可售房源在450套左右。同时规划约2500㎡会所以及约1500㎡架空层。

佰隽廷售楼处电话☎:400-880-0703✔✔
另外一宗07-05地块, 由原先的Rr3类住宅用地调整成为Rr3Rr4类混合住宅用地;
其中Rr4类租赁住宅占比≥70%,Rr3类住宅≤30%。
根据设计方案显示,该地块拟建5幢8-18F租赁住房、4幢8-10F商品房以及社区配套, 其中可售住宅分布在社区南侧,仅约160套左右。

佰隽廷售楼处电话☎:400-880-0703✔✔
两宗地块位于位于三林滨江东区,紧邻8号线及在建的19号线凌兆新村站,步行可达。
三林滨江是黄浦江沿岸仅剩的一块可供整体开发的区域,规划“一廊两心三园四片区”。
整个板块生态绿地率高达65%,有占地约240公顷城市森林,约450米宽的森林绿廊。规划有健康生活公园、人文艺术公园、自然游憩公园等三大公园。

佰隽廷售楼处电话☎:400-880-0703✔✔
在近期的规划调整中,07-05地块由三类住宅用地调整为Rr3Rr4类混合用地,Rr4类占比7成,该地块主要以租赁为主;
另外,07-08地块从之前的商住混合用地,调整为Rr4类住宅&商业混合用地,剔除了可售商品房。

佰隽廷售楼处电话☎:400-880-0703✔✔
佰隽廷,是个不折不扣的“三轨交汇”地铁盘!项目东侧凌兆新村地铁站除了一条能直通人广的8号线外,还有一条19号线和26号线!

佰隽廷售楼处电话☎:400-880-0703✔✔
其中, 19号线去年动作频频,上半年完成了草案公示和开启招标,距离正式动工又近了一步!这条线路,因为经过北外滩、陆家嘴、世博、后滩、前滩等沿江板块, 又被称为“轨交滨江线”,能级颇高,沿线34个车站,换乘站就有18个,妥妥的“轨交换乘王”!

佰隽廷售楼处电话☎:400-880-0703✔✔
地铁远期规划中, 凌兆新村还有26号线,极有可能是一条轨交中环大环线,串联江湾-五角场、张江、金桥等多个城市副中心,虹桥商务区、桃浦科技城、三林等多个城市重点发展区域!
联通浦东前滩和徐汇滨江的龙水南路越江隧道新建工程传来新进展:1标浦东段北线隧道顺利完成盾构始发!

佰隽廷售楼处电话☎:400-880-0703✔✔
龙水南路越江隧道重点服务浦东三林南部、前滩区域到上海南站、徐汇滨江、长桥等区域的中短距离交通,建成后可实现徐汇滨江核心区与浦东前滩地区的直接联系。
至此,从后滩、到前滩,就有了龙耀路、龙水南路、上中路、徐浦大桥四条跨江通道,进一步增强滨江两岸地区的交通便利性, 更方便了前滩触及更多浦西核心CAZ和产业职能区!
可以说,这里一定是上海的核心地段,新房也一定是上海的核心资产!


1、什么是房产:房屋产权的简称。
2、什么是地产:是指土地财产。
3、什么是房地产:是房产和地产的总称。
4、什么是房地产业:从事房地产开发、建设、经营、管理以及维修、装饰和服务的综合性产业。
5、什么是房地产开发:是指在依法取得土地使用权的土地上按照使用性质的要求进行基础设施、房屋建筑的活动。
6、什么是土地开发:是将“生地”开发成可供使用的土地。
7、集体土地是指:农村集体所有的土地。
8、征用土地是指:国家为了公共利益的需要,可依照法律规定对集体所有的土地实行征用。
9、什么是土地所有权:是指国家或集体经济组织对国家土地和集体土地依法享有的占有、使用、收益和处分的权能。
10、什么是土地使用权的出让:指国家以协议、招标、拍卖的方式将土地所有权在一定年限内出让给土地使用者,由使用者向国家支付土地使用权出让金的行为。
11、什么是土地使用权转让:是指土地使用者通过出售、交换、赠与和继承的方式将土地使用权再转移的行为。
12、什么是地籍、产籍:是对在房地产调查登记过程产生的各种图表、证件等登记资料,经过整理、加工、分类而形成的图、档、卡、册等资料的总称。
13、生地是指:不具备开发条件的土地。
14、熟地是指:已完成三通一平(水、电、道路,土地平整)或七通一平,具备开发条件的土地。
15、什么是宗地:是地籍的最小单元,是指以权属界线组成的封闭地块。
16、什么是宗地图:是土地使用合同书附图及房地产登记卡附图。它反映一宗地的基本情况。包括:宗地权属界线、界址点位置、宗地内建筑位置与性质、与相邻宗地的关系等。
17、证书附图是指:房地产后面的附图,主要反映房地产情况及房地产所在宗地情况。
18、什么是物业管理:泛指一切有关房地产开发、经营、商品房销售、租赁及售后服务。
19、什么是业主委员会:是在物业管理区域内代表全体业主实施自治管理的组织。是代表
物业全体业主合法权益的社会团体,其合法权益受国家法律保护。
20、业主委员会是如何产生的:由业主大会从全体业主中选举产生。
21、住房补贴是指:国家为职工解决住房问题而给予的补贴资助。
22、房屋的所有权是指:对房屋全面支配的权利。
23、房地产交易的两种主要形式是:地产交易形式与房产交易形式。
24、建筑物是指:人工建造而成的房屋和构筑物。
25、构筑物是指:建筑物中除房屋以外的东西。
26、什么是期房:是指消费者在购买时不具备即买即可入住的商品房。
27、期房是如何介定的:房地产开发商拿到商品房预售许可证开始至取得房地产权证大产证或竣工验收合格可以直接入住使用)为止。
28、什么是预售合同:消费者在购买期房时签定的销售合同。
29、什么是现房:是指消费者在购买时具备即买即可入住的商品房,即开发商已办妥所售的商品房的大产证(或已经竣工验收合格并交付使用)的商品房。
30、什么是毛坯房:房地产商交付屋内只有门框没有门,墙面地面仅做基础处理而未做表面处理的房叫毛坯房。
31、什么是成品房:是指对墙面、天花、门套、地板实行装修。
32、什么是商品房:是指以完全的市场价格向购房者出售的房子。
33、商品房预售是指:在房地产尚未建成以前,房地产的经销商在取得受买人一定数量的定金后,将期房出售给受买人。
34、商品房现售是指:指房地产开发企业将竣工验收合格的商品房出售给买受人。
35、二手房通常指的是:再次进行买卖交易的住房。
36、经济适用房指的是:面向中低收入家庭的普通住宅。
37、例出3种以上的安居房的种类:准成本房、全成本房、全成本微利房和社会微利房。
38、低层住宅的介定:1-3层的住宅。
39、多层住宅的介定:4-6层的住宅。
40、小高层住宅的介定:7-11层的住宅。
41、中高层住宅的介定:12-16层的住宅。
42、高层住宅的介定:16层以上为高层住宅。
43、超高层建筑的介定:总高度超过100米的建筑。
44、商品房的结构是指:房屋主体所使用的施工工艺和用材。
45、钢结构的意思是:承重的主要结构是用钢材料建造的,包括悬索结构。
46、钢混结构的意思是:承重的主要结构是用钢和混凝上建造的。
47、砖木结构的意思是:承重的主要结构是用砖、木材建造的。
48、砖混结构的意思是:主要是砖墙承重,部分是钢盘混凝土承重的结构。
49、框架结构的意思是:以钢筋混凝土浇捣成承重梁柱,再用预制的隔墙分户的结构。
50、开间指的是:一间房屋内一面墙的定位轴线到另一面墙的定位轴线之间的实际距离。
佰隽廷
售楼处电话☎:400-880-0703✔✔
如有问题欢迎来电咨询,来电即可享受买房优惠!
预约来电尊享购房优惠,可预约案场内部销售人员,专业一对一热情服务,让您用专业眼光去买房。
佰隽廷售楼处电话☎:400-880-0703✔✔
楼盘项目全面介绍,本电话为开发商提供线上预约售楼电话,楼盘项目全面介绍(包含楼盘简介,均价,房价,现房,期房,别墅,叠墅,大平层,价格,楼盘地址,户型图,交通规划,备案价,备案名,项目配套,样板间,开盘时间,认筹时间,楼盘详情,售楼处电话,最新消息,最新详情,周边配套,一房一价,最新进展等详情咨询)楼盘详情丨价格丨更多优惠丨机不可失丨欢迎致电丨诚邀品鉴!售楼处位置丨特价房丨工抵房丨剩余房源丨户型图丨最新消息丨免责声明:将文章内容综合来源于网络、只作分享,版权归原作者所有!!如有侵权,请联系我们,我们第一时间处理如有问题欢迎来电咨询,专业一对一热情服务,让您用专业眼光去买房。如果您想了解更多楼盘详情,欢迎提前预约拨打