保利誉滨江-上海保利誉滨江楼盘详情(2025保利誉滨江房价+户型图)保利誉滨江房天下
扫描到手机,新闻随时看
扫一扫,用手机看文章
更加方便分享给朋友

区位方面,保利誉滨江位于杨浦滨江南段的黄金位置,直线距离黄浦江仅约500米。
周边配套一应俱全,交通上北横通道、中环军工路等主干道环绕周围,距离12号线爱国路站步行距离约700米。

教育上有平凉路第三小学、东辽阳中学、上海市第二十五中学,还有规划中的复旦国际学校。商业上有上海国际时尚中心和在建的超极合生汇。
此外,周围还有波阳公园、杨树浦电厂遗迹公园、上海市总工会沪东工人文化宫、白洋淀足球场馆等配套,能够满足文体休闲需求。

从地理位置上来看,杨浦滨江的发展规划,叠加量子概念网红复兴岛的产业加持,未来会有不错的预期。
保利誉滨江基底采用质感厚重的石材,上层第一界面则以全铝板+玻璃幕墙为主,更突破性地实现了“四面平权”设计——不同于多数楼盘只注重南面美观,侧面与北面简化处理的做法,保利誉滨江无论从正面、侧面还是背面观察,立面都保持精致统一的视觉效果。
项目首推建面约117-139㎡3-4房。
建面约119㎡三房户型:
南向双阳台,私厅入户
建面约139㎡四房户型:
南向面宽10米,侧向总面宽14.1米。两个转角飘卧室。双阳台,其他房间全飘窗赠送。除了西边,另外三面几乎全是窗。看中庭景观,不到约140㎡的户型竟然能配浴缸!
建面约154㎡四房户型:
四面宽,南向总面宽约14.2米,客厅面宽约4.3米,进深约7米,客餐厨阳台一体化,主卧面宽约3.8米。三阳台(交付后不破坏外立面可以自行打通改造)、主卧大转角飘。
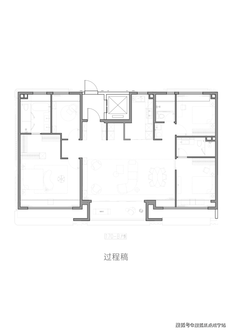
建面约170㎡户型:
五面宽设计,南向总面宽约17.2米,餐客厅面宽约8.2米。主卧面宽约5.4米,尊崇独立衣帽间,空间阔绰可分男女。三个套房。独立八百库收纳、卫浴收纳拉满。

保利·誉滨江还带来了约3000㎡会所体系,由约1500㎡下沉式景观会所与约1500㎡架空层泛空间共同构成。
设计融合曲面金属与天然石材,呈现兼具未来感与奢华格调的美学表达。
功能上涵盖全维度生活场景:地下会所设置恒温泳池、健身房、瑜伽室、男女干蒸房及带自然采光的地下光厅。

同时配备私宴厅(含厨房)、咖啡茶歇区、红酒品鉴区、室内高尔夫、棋牌室及深度洽谈区,满足高端社交与品质休闲需求。
架空层功能根据家庭需求规划,分别服务于儿童、女主人及男主人,精准适配每一位家庭成员的生活需求。
从社交、健身到休闲,一切所能想到的生活需求,皆在此得到细致回应。
声明:本文由入驻焦点开放平台的作者撰写,除焦点官方账号外,观点仅代表作者本人,不代表焦点立场。
