中環置地中心·望雲售楼处2025官方首页网站|望雲售楼处电话|在售户型|小区配套|最新价格|周边详情|容积率|楼盘详情
扫描到手机,新闻随时看
扫一扫,用手机看文章
更加方便分享给朋友
回顾其辉煌战绩:十三开十三捷,累计热销超2000套,这组数据背后是2000多个高净值家庭用真金白银投出的信任票。它不仅是2024年上海楼市无可争议的年度销冠,更在2025年上半年延续强势,斩获外环内销售套数与销售面积双料TOP1。在竞争最为激烈的700-1200万总价段,它更是以绝对优势夺得2025年1-9月的销售金额、销售套数、销售面积三冠王。
这种现象级的热销,早已超越了单纯的“红盘”概念,它代表了一种强大的市场向心力。当大多数项目还在为去化率挣扎时,中環置地中心却始终在被坚定选择、被竞相争抢。如今,倾城竞逐的超级神盘迎来收官批次,对于此前遗憾错过的购房者而言,这无疑是最后、也是最好的上车时机。
该宗地块与华润置地中心润府相邻,将打造全新万象汇TOD综合体——中環置地中心·望雲
32-04地块,规划8幢住宅,总高8-26F,可售套数约580套左右。

2#、7#、8#有连廊,其中2#预估是3梯5户,7#、8#是3梯6户。其余楼栋无连廊,1梯2户;5#、6#总高8层,无架空层,其余楼栋1层均有架空;9#、10#总高17F,其余楼栋总高22-26F;该地块无保障房,地面无车位,人车分流。
11-01地块是商业、住宅混合地块。

规划3栋总高17-29层住宅,商业部分有2栋总高30F的酒店、23F的综合楼、以及2栋3F的商业;住宅和商业部分通过公共通道分隔;住宅部分人车分流,无地面车位。车行入口在西侧祁健路上。

华润置地在南大卖了2000+套新房,把南大彻底从“价格洼地”变成“置业热土”。但是改善类新房,却一直是南大非常稀缺的“硬货”。
据克而瑞数据统计,2024年至今南大新房共计成交3655套,成交金额约280.67亿元,彻底坐稳上海中环一哥!

望雲TOD就是华润置地拿下的丰翔路地块二期的11-01地块,无缝对接15号线丰翔路地铁站,“0距离”走马塘公园,以连廊、天桥与“魔法传送门”构建漫步环线,与万象汇商业和地铁站紧密结合!
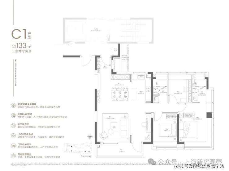
最新信息!15号线丰翔路近百万方TOD【中环置地中心·望雲TOD】收官加推86套建面约108-165㎡3-4房;10月11日已过会均价67477元/㎡!本次热推产品为2#号楼建面约165㎡头排全景舱、6#号楼建面约108㎡爆款户型!售楼处线上火热预约中!
上期一房一价表如下:













效果图展示,实际以交付为准
整个社区以主景花园联动自然教室、休闲交谊与艺术空间,形成婉转游园的酒店式迎宾水院。
效果图仅供参考,具体以实际交付为准
效果图仅供参考,具体以实际交付为准
同时,以超奢戏水池与尊享休闲会所为核心,联动架空层,串联休憩廊架与横向端景,打造核心奢享场景。
效果图仅供参考,具体以实际交付为准
另外,整个项目拥有包括泛会所(戏水池、高定健身场所)、场景化网红架空层泛会所等全维社交场景。

中环置地中心 地处宝山南大板块!作为宝山4个重点发展区域之一,南大同时也是上海北部最大的待开发区域之一。待开发,也就意味着尚未建成!但不管是从规划还是位置来看,南大都是上海少有的能兼顾产业和居住的板块之一。

首先南大被称为中心城区一块不可多得的“大衣料子”,总开发体量约540万方,包含两大TOD及约250米天际地标,规划绿地面积占比高达43%(来源:上海宝山)!
和其他区域边拆边建式的零散开发不同,而是统一拆改后再集中规划,这样的开发形式,也决定了这里的规划从一开始就会相对完整且高能级。比如它的产业先行,整个区域内分布了不少的科创产业。

而且,从2035总体规划中,其实也能看出来,南大定位很高,属于全市重点推进的整体转型区域,是宝山建设上海科创中心主阵地的核心载体。

所以不管是放在全上海还是宝山,这都是一块举足轻重的产业基地。而除此之外,前面也提到,南大板块规划的绿地面积占比高达43%。特色公园40余个,人均绿色面积约39.38㎡,是上海人均绿地面积的约3倍。未来可能会是一个超越碧云的大型生态居住区。(数据来源:上海宝山区政府官网)

也就是说,在这个重点产业区域,其实早就考虑到了与生活相融的问题。讲真,在环线外的空白区域这样规划不是难事,但在上海的中环附近,近乎预留了一半的土地给到绿化,给到生活,这算的上是一件吃力不讨好的事儿。
但南大有宜人的生态,而且还是高规格。中环置地中心·望雲 位于南大智慧城C位,周边生活配套非常成熟且距离相对较近,未来随着板块规划逐步兑现,地段价值将会更加凸显。

交通方面:北侧丰翔路、西侧祁健路、东侧汇丰路已建成通车,07-01地块南侧丰皓路(祁健路-工学路)计划2024年开工建设。项目距离15号线丰翔路站步行可达,日常出行非常方便。

商业方面:项目本身就是一个自带商业的TOD,华润置地规划以万象系列融汇轻奢时尚、休闲生活、运动潮流等多元业态,打造北中环“都市商业新旗舰。除了未来的万象系商业(规划中),周边还有经纬汇、聚丰购物广场、上坤城市广场、山姆会员店等,购物还是比较方便的。
医疗方面:项目周边有两大三甲级医院为健康保驾护航,本别是:仁济医院宝山分院和华山医院(宝山院区)。

教育方面:周边荟萃南大实验幼儿园、宝山区南大实验学校、上大附小、上大附中、上海大学附属学校、上海大学等全龄化教育资源。

宝山南大「中環置地中心·望雲」收官加推约108-165㎡3-4房;均价67477元/㎡!
声明:本文由入驻焦点开放平台的作者撰写,除焦点官方账号外,观点仅代表作者本人,不代表焦点立场。
