绿洲广场首页网站-绿洲广场2025年最新价格 | 绿洲广场户型-生活配套-楼盘地址
扫描到手机,新闻随时看
扫一扫,用手机看文章
更加方便分享给朋友
面积76-120平 一口价240-358万
普陀区绿洲
长风板块享成熟配套·依托环球港·坐享5轨环绕
🏠整层销售
🍊建面约:75.96平--- 120.81平
🍊总高:28层/层高:3.1米
🍌梯户比:3梯12户
🍊交房时间:款清交房
🍌拿地时间:2001年
🍊竣工时间:2004年
🍌产权:50年
🍊物业: 上海兰逸物业
🍌物业费:5.8元/平
🍊水:5元/吨;电:1元/度
🍌得房率:76%左右
🍊首付比例:80%
🍌装修标准:软硬装全送
🅿️ 停车费:临停10元/小时;包月900元/月
绿洲广场项目卖点
第一 :内环内 环球港0距离(环球港普陀的门面,单体商业最大)
第二 :户型方正,可以看三件套!
第三 :生活成本低 物业费5.8 水5 电1块
第四 :5条地铁环绕 曹杨路200多米 3/4/11/14号线 13号线金沙江路站500米
第五 :租金收益高 环球港和华东师范大学比较近,租赁需求比较高,76租金8500-9000左右,
第六 : 独立上下水 整层装修!
第七 : 医院资源丰富 普陀中心医院 普陀儿童医院(三甲)2.8公里 同济医院(三甲)3公里内
第八 : 房型目前2房,房间无承重柱或墙,可改造较高,可以改小三房!
项目区位
项目东至曹杨路与长寿路街道相邻,南至苏州河与长宁区相连,西至真北路与长征镇相接,北至金沙江路、中山北路与曹杨新村街道接壤,享长风板块
交通配套
5+1+1立体交通网络:
距地铁3-4-11号线曹杨路站约400m
距地铁3-4-13号线金沙江路站约400m
距地铁14号线曹杨路站约 500m
『3站地铁可到达上海西站,上海火车站,中山公园;5站地铁可到达徐家汇,人民广场,陆家嘴,静安寺,中山公园;7站可到达虹桥机场』
公交:中山北路曹杨路站44、64、94、224、216路公交
1公里内可上内环高架;上内环高架向东可上南北高架,向西可转延安
商业配套
环球港(48万方)约300m|凯悦大酒店约500m
龙之梦广场约1.9km|长风大悦城约2.3km
久光百货约3.3km
医疗配套
曹杨社区卫生服务中心约800m
普陀区中心医院约1.1km(二甲综合医院)
上海市儿童医院约2.8km(三甲医院)
休闲配套
2公里内有曹杨公园,中山公园,普陀公园,长风公园,真如古镇,真如寺等
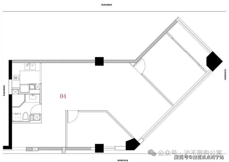
面积:75.96 朝东
户型图视频
户型图
色彩搭配上,多采用中性色或单色调,营造出宁静而舒适的氛围,正如密斯•凡•德罗所说:“少就是多。”
简约的家具,注重功能性与美观性的结合,既实用又彰显品味,体现了对生活品质的追求。
空间布局开阔,让家充满自由与灵动的气息,给予人们更多的活动空间和精神舒展的可能。
灯光设计巧妙,点亮生活的每一个角落,如安藤忠雄所言:“光赋予美以戏剧性。”
现代简约,让生活回归本真,在简单中发现美好,享受纯粹的幸福时光。
声明:本文由入驻焦点开放平台的作者撰写,除焦点官方账号外,观点仅代表作者本人,不代表焦点立场。
