虹口北外滩新房「中粮北外滩壹号」推出185-410平高层/风貌别墅!
扫描到手机,新闻随时看
扫一扫,用手机看文章
更加方便分享给朋友
3000万级预算客户的选择面向来是很广的。
但在小胖看房直播间和小胖看房公众号后台,近期3000万级客户几乎全都不约而同的“锚定”着同一个项目,不问值不值,只问什么时候入市,大有非ta不可的态势!
这个项目就是北外滩的中粮北外滩壹号!

项目效果示意图,仅供参考
你一定好奇这个项目有何魔力,能让3000万级客户集体转向?
简单对比,你就明白了:
北外滩板块是近一年最炙手可热的滨江板块之一,但红线内的住宅却是少之又少。
今年好不容易出让一块宅地被绿城摘走,预计价格或超过19万/㎡。平心而论,作为黄金三角里的稀缺供应,北外滩卖到19万我并不奇怪。
但你知道吗?
中粮北外滩壹号拿地更早,同样属于北外滩红线范围里,与绿城项目几乎呈现掎角之势,而据知情人士透露,该项目的预计价格仅约15-16万/㎡,项目主推建面约185-228㎡四房,总价约3000万级!如果属实,这个价格无疑是北外滩错过再无的抄底机遇!
比价格更重要的是,中粮壹号系作品一直都是手握板块定价权的标杆品质项目。
我统计了最新的链家网挂牌数据,发现四座壹号系作品,比同板块次新小区要溢价约19-30%!
那么摆在眼前的中粮北外滩壹号,给出的就是:用抄底价买到板块标杆级品质小区的时代机遇!这样的机会,谁肯错过?

我们扩展到黄金三角,外滩多少年没有新房供应了,陆家嘴的太古源四房起步4千万。按这个逻辑绿城北外滩项目四房看齐4千万也在情理之中。
但中粮北外滩壹号的出现,打破了这一既定格局,俨然是3000万级预算买进黄金三角4房大平层的天赐良机!
我们扩展到整个一线滨江板块,可以看到,除了陆家嘴,黄浦滨江、世博滨江、徐汇滨江等新贵已经“补涨”到19万/㎡左右,绿城显然是最后一块拼图,卖19万/㎡再正常不过,未来3000万级预算别说买进黄金三角大四房,一线滨江板块都够不上。
所以不得不承认,3000万级预算买进一线滨江,买进黄金三角,买进最炙手可热的北外滩,买进豪宅圈的顶级IP,中粮北外滩壹号当之无愧年末压轴之作,3000万级客户必看!

下面我们详细来看中粮北外滩壹号的地段与产品:

地段:不止是北外滩正C位,更是梧桐遍地的风貌区!
很多人认为,滨江黄金三角:外滩、陆家嘴和北外滩是同一量级。
但我认为,北外滩超越前两者几乎是必然!
三大支撑让你不得不承认:
丨支撑一:恢弘巨制,北外滩的开发体量是陆家嘴核心区的2倍!
从规划的角度来看,北外滩的开发体量超过840万方,是陆家嘴核心区的2倍,伦敦CAZ的7倍。
项目南侧的北外滩核心区,更是发展的重中之重。1/5的土地上,将承载了北外滩超四成的建筑体量。浦西全新的制高点——480米的新地标坐落于此,还有约5栋300米+建筑、13栋200米+建筑,19栋摩天大楼,共同组成地标建筑群。

北外滩规划效果图
丨支撑二:北外滩是站在巨人肩膀上的再超越!
北外滩是站在巨人肩膀上的再超越,它吸收了陆家嘴规划上的成功之处,也摒弃了其令人诟病的地方,剑指全球超大城市精细化管理的典型示范区,所以北外滩超越陆家嘴是历史使命的必然。
具体来看,北外滩将比陆家嘴具备更深的历史文化底蕴,有更休闲的滨江路网和生态环境,也有更具城市温度的人文关怀。

北外滩规划效果图
丨支撑三:世纪规划北外滩的兑现速度全球领先!
陆家嘴成为上海金融之巅花了30年,而留给北外滩的时间只有10年!所以你会看到北外滩规划兑现的速度简直史无前例!
2023年,北外滩开发建设重大工程项目22个,投资超过800亿元,实现开竣工面积141.9万㎡。
2024年,北外滩将推动开建重大工程项目48个,投资1890亿元,计划实现开竣工面积超140万㎡。
那些前几年还停留在图纸上的城市地标,如今已经屹立江边,成为上海新的天际线!
约320米的白玉兰广场
约263米来福士双塔
综上所述,未来的北外滩在规模、业态、发展速度方面都会超越外滩、陆家嘴,说它是当下最炙手可热的滨江板块,没有任何问题。
而作为北外滩红线内屈指可数的住宅项目,中粮北外滩壹号无疑能尽享这份世纪红利!

示意图仅供参考
更难得的是,中粮北外滩壹号所在区域,恰恰是北外滩核心商务区与提篮桥风貌区交汇地。
意味着,住在中粮北外滩壹号,信步可达黄金三角的汹涌澎湃与商务区的现代繁华。转身即入,梧桐树下被时光浸润的静谧街区和里弄肌理。

示意图仅供参考
这并非简单的区位叠加,而是一种稀缺的生活范式——在世界的舞台上奔涌向前,亦能在历史的脉络里安顿身心。
项目带来的,不止是一处居所,更是一种“出则掌控全局,入则栖心桃源”的从容境界。
而且小胖君深入了解了提篮桥风貌区的规划,发现几乎全部都是低密产品,中粮北外滩壹号即将入市的是片区唯一一幢高层!采光与视野可想而知!

示意图仅供参考
这让我想起了衡复风貌区的嘉里华庭。
这个小区的挂牌均价不过15-16万/㎡,但高区能看低密洋房的房源挂牌价普遍超过20万/㎡,最高能超过24万/㎡。

下图是嘉里华庭高区的视野实景图,无遮挡一览无余的景色相当震撼!
图片来源于网络
确实,能在繁华市中心,将一抹充满文化气息的绿意“镶”在窗框,成为日常生活的背景图,这样的心境与掌控感值得这样的溢价!
显然,作为风貌区唯一的高层,中粮北外滩壹号未来必然拥有同级别的享受,值得期待!

产品:北外滩“壹号”作品,重新定义了滨江国际豪宅生活!
在上海豪宅圈,中粮的“壹号”系作品已然成为身份与地位的象征,其超强的保值能力也让入手它的业主资产一再进阶。
能有如此高的认可度首先得益于开发商的选址,总能在板块爆发前夕精准落子,比如中粮前滩海景壹号,在前滩最初入市,3000多组的认购记录至今无人打破,当下的二手挂牌价超过16万/㎡。
再比如瑞虹海景壹号,北外滩早期作品,四开四罄热销185亿,当时新房11万多/㎡,现在瑞虹新房16.6万/㎡,中粮的二手房更是稳定在17万元/㎡左右。
可以说,跟着中粮买准没错,选择“壹号”系作品,就是选择了最好的资产压舱石!

示意图仅供参考
除了选址,壹号系成功的另一个秘诀则是超越时代的品质。
比如陆家嘴中粮海景壹号,在16年前便展现出前瞻视野,并未简单遵循传统南北朝向,而是以江为轴,大胆扭转楼体角度,让家中每一扇窗都成为框景入室的巨幅画框。这一“为景让位”的创举,不仅是产品力的大胆革新,更是远见与胆识的体现,至今仍为业主资产提供着坚实的价值支撑。
作为壹号系最新力作的中粮北外滩壹号,品质自然无可挑剔。
丨首先是无比纯粹、统一的圈层!
据悉,中粮北外滩壹号是上海市中心罕见的无商办、无自持住宅、无保障房的纯住宅项目。而且不是单一高层或别墅,是把俯瞰天际的现代大宅与承载文脉的风貌别墅放在一起,实现互相成就的稀缺性。
高层面积起步建面约185㎡天际大平层,整体圈层能级相对统一,打造出一道真正属于高净值人群的身份门槛。

项目效果示意图,仅供参考
丨其次,是超越时代的建筑审美!
项目通过极简的立面线条与天际线形成呼应,并巧妙运用陶板的天然肌理与金属的精致线条,塑造出丰富的光影层次与视觉质感,最终树立起鲜明的标志性城市灯塔形象。

项目效果示意图,仅供参考

项目效果示意图,仅供参考
此间别墅,承石库门之骨相,融当代设计之精神。
对经典门头、山花与院落进行尺度重构,成就顶豪审美下应有的优雅典范。

项目效果示意图,仅供参考
丨再次,是与北外滩和风貌区相得益彰的园林设计!
项目的园林景观设计紧扣「拾光映象」理念,让镜面水景、古木纹石材与艺术雕塑,共同复刻源福里的往昔剪影。
「八大主题场景」如长卷铺陈开,从百年梧桐下的静谧巷道,到充满未来感的艺术庭院,共同构成一个鲜活立体的生活剧场。

项目效果示意图,仅供参考
丨全市独一档的会所高占有率!
在上海,以别墅为主体的项目极少带会所。
原因主要有2方面,一方面业主基数少,均摊成本高;另一方面,别墅业主对会所品质要求极高,非常考验开发商的运营能力。
在这样的背景下,中粮北外滩壹号坚守“壹号”标准,突破性挖地三层打造出惊人的1800㎡顶奢会所,恒温泳池、健身瑜伽、私宴茶室、酒吧会客等功能一应俱全。
折算本就稀少的户数,会所空间的高占有率、高使用频率,全市可能是独一份!


以上均为项目效果示意图,仅供参考
丨最后来看户型:
项目没有拘泥于传统的南北通透,而是打造了270°观景的天际大平层,低区俯瞰风貌别墅风华,中区远眺北外滩天际线,高区直接对话陆家嘴三件套,层层递进的视觉层次感,让每一户都能拥有绝佳视野!
项目一层4梯4户,每户都有独立电梯厅,保证私密性的同时,也能成为家的延伸!
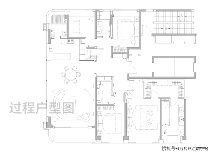
功能性方面,全部是四房两厅三卫的户型,适配当下越来越多的三代同堂和二胎家庭。
功能布局上,基本都做了三开间或四开间朝南、阔绰南向观景面,客餐厅LDKB一体化,多套房设计,独立书房或X空间,主卧小家化,尺度感与舒适度都是妥妥的顶豪水准!

网传185㎡过程户型图

网传228㎡过程户型图
综上所述,凭借其优越的地段、稀缺的天赋以及高品质的产品,中粮北外滩壹号无疑是北外滩新的封面之作!
对于3000万级买家来说,项目也是买进黄金三角、甚至整个一线滨江板块大尺度4房错过再无的置业机会,且买且珍惜!
声明:本文由入驻焦点开放平台的作者撰写,除焦点官方账号外,观点仅代表作者本人,不代表焦点立场。
